Первичная продажа



Ипотека Траншами
ещё 7 акций
Онлайн-бронирование
сдача ГК: 1 кв. 2028 года
Площадь Гагарина
10 минут пешком
50 763 390 ₽
978 100 ₽/м²
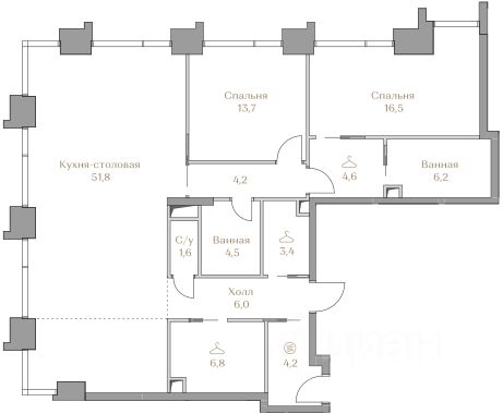
2-к квартира в премиальном комплексе SHIFT на 5-м этаже в 18 этажном здании. Общая площадь 51.9 кв. м.
SHIFT - новый премиальный проект от девелопера PIONEER в Донском районе, в 300 м от Нескучного сада.
Главная особенность проекта - 5 башен, в которых воплощен принцип модульной архитектуры: каждый этаж смещен относительно предыдущего, что создает эффект парящих в воздухе граней. Архитектура SHIFT создана самым востребованным бюро Москвы - "Цимайло Ляшенко и Партнеры".
У жилого квартала удобное расположение: Ленинский проспект ведет прямо к Садовому кольцу и в центр, а быстрый выезд на ТТК станет ключом к любому району Москвы.
Многообразие сервисов и коммерческих помещений создает в SHIFT всю необходимую инфраструктуру: кафе и рестораны, супермаркет и многое другое.
Преимущества проекта:
- Потолки от 3,65 м
- Панорамные окна и террасы
- Приватный ландшафтный двор-парк 4 000 м2
- Коммерческая инфраструктура 4 000 м2
- Клубная инфраструктура 350 м2
Девелопер:
За 24 года на рынке недвижимости компания PIONEER реализовала более 30 проектов. Сегодня PIONEER - девелопер премиальной недвижимости с 4 проектами класса премиум и делюкс.
Звоните, и мы с удовольствием расскажем все подробности о проекте и условиях покупки.
Продажа от застройщика. Покупка доступна в ипотеку.



















































































