Первичная продажа



сдача ГК: 1 кв. 2029 года
Краснопресненская
4 минуты пешком
168 234 400 ₽
2 260 000 ₽/м²
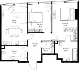
Старт продаж! Продаётся 2-комнатная квартира евроформата в клубном жилом проекте элит-класса "Дом Спорта" — пространство с выразительной архитектурой и гибкой планировкой в центре Москвы.
Квартира спроектирована так, чтобы адаптироваться под разные сценарии жизни, сохраняя баланс между приватностью и открытым пространством:
— Кухня-гостиная — основная зона для жизни, отдыха и приёма гостей
— Изолированная мастер-спальня с гардеробной — приватное пространство для комфорта и уединения
Окна жилых комнат ориентированы на запад и север. Западная сторона открывает виды в сторону Москва-Сити и наполняет пространство мягким вечерним светом. Северная экспозиция выходит во внутренний двор с перспективой в сторону Московского зоопарка, создавая спокойную, более камерную атмосферу и равномерное естественное освещение без резких перепадов в течение дня.
Особенность квартиры — архитектура фасада: плавная линия панорамных окон формирует пространство без привычных острых углов. Интерьер приобретает выразительную геометрию и ощущение баланса.
Эта квартира подойдёт для тех, кто ценит продуманные планировки, приватность, мягкий свет и разнообразие видовых сценариев в элитном сегменте.
Дополняет это пространство клубная атмосфера самого жилого комплекса — приватная, камерная и ориентированная на высокий уровень жизни.
Жилой комплекс "Дом Спорта" расположен на "золотой миле" Пресни, в непосредственной близости от Дома Правительства РФ и Москвы-реки. Это камерный проект элит-класса, состоящий из трёх восьмиэтажных домов, где предусмотрено всего 92 квартиры. Такая камерность обеспечивает приватность и особую атмосферу уединения в самом сердце столицы.
Ключевой особенностью проекта станет масштабная спортивная инфраструктура мирового уровня:
• Две ледовые арены международного класса, соответствующие стандартам КХЛ, включая ВИП-арену с отдельным входом
• Шесть крытых падел-кортов, отвечающих международным стандартам
• Футбольное поле профессионального уровня
• Фитнес-зал площадью 750 квадратных метров с панорамным остеклением и профессиональным оборудованием
• Бассейн с 50-метровыми дорожками, тренировочной зоной и детским пространством с инструкторами
• Спа-центр с сауной, хамамом и профессиональными массажными программами
• Студии йоги и пилатеса с высокими потолками и панорамным остеклением
• Открытые спортивные площадки с профессиональным оборудованием для тренировок на свежем воздухе
Это первый в центре Москвы формат жизни, где спорт становится частью ежедневного комфорта, воспитывает характер и объединяет семью, формируя новые традиции в пространстве элитного клубного дома. Купить 2-комнатную квартиру в новостройке в округе ЦАО в Москве.









































































































































































