Первичная продажа



Семейная ипотека от 6%
ещё 4 акции
Только на Циан
Онлайн-бронирование
сдача ГК: 4 кв. 2028 года
Липовая Роща
20 минут на транспорте
39 646 728 ₽
531 600 ₽/м²
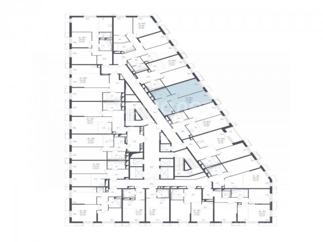
В продаже — двухкомнатная квартира, общей площадью 74,58 кв. м. Квартира расположена на четвертом этаже десятиэтажного корпуса Балансд в квартале В16 нового района СберСити, который строит Сбер.
Архитектуру квартала В16 создало итальянское бюро ARCHEA middle east: каждый дом узнаваем, но вместе они складываются в спокойный, цельный ансамбль. В облицовке сочетаются тёплые оттенки кирпича и металла, за счёт игры фактур фасады выглядят живыми и меняются в разное время дня. Строгая геометрия поддерживает ритм города, а мягкая природная палитра помогает чувствовать себя дома, а не в деловом квартале.
Дом возводится по технологии монолитного строительства. Квартиры передаются без отделки, что позволяет будущим владельцам реализовать собственные дизайнерские решения и индивидуальные планировки.
В квартирах предустановлена система "умный дом", объединяющая управление квартирой, домом и прилегающей территорией. Можно регулировать климат и освещение голосом или через смартфон.
Квартал состоит из девяти домов средней этажности — от 7 до 10 этажей. Корпуса формируют большой внутренний двор площадью два гектара. Во дворе предусмотрены зоны для разных сценариев: просторные площадки для детей, пространства для активного досуга и спорта, тихие места для отдыха и спокойного времени, а также удобные рабочие места под открытым небом. Здесь легко найти своё — для жизни, здоровья и занятий тем, что действительно нравится.
В доме предусмотрены:
уютное лобби с зоной ожидания,
лапомойка,
санузел,
помещение для хранения колясок и велосипедов,
подземный паркинг.
СберСити — это новый жилой и деловой район на западе Москвы, в одном из самых экологически чистых и престижных мест столицы. Это первая в России и крупнейшая в мире инновационная городская среда, созданная по международным стандартам зелёного проектирования. Здесь внедряются решения в области энергоснабжения, вакуумного мусороудаления, тестирования зелёных технологий, а в дальнейшем — системы искусственного интеллекта для управления домами и городской инфраструктурой.
Строительство проекта началось в 2021 году, заселение первых корпусов — с лета 2024-го. Общая площадь территории — 461 га, из них более 2,5 млн кв. м жилья и около 833 тыс. кв. м офисных пространств. Будет построено 7 школ, 13 детских садов и 2 поликлиники. В СберСити будут жить 65 тыс. человек и работать 70 тыс. Развитием территории занимается АО "Рублёво-Архангельское", входящее в группу Сбер.
СберСити — место, где хочется жить, работать и растить детей.
Переезжайте в СберСити!































































































