


516 252 ₽/м²
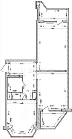
Уважаемые покупатели! Предлагается стильная евро-3 квартира в бизнес-квартале City Bay, прямо на берегу Москвы-реки, с собственной набережной для прогулок, пробежек и закатов "на репите". На 19 этаже вас ждёт воздух, свет и ощущение свободы. 52 м² грамотно спланированного пространства с просторной кухней-гостиной - здесь легко дышится и хочется жить красиво. Характеристики • Площадь: 52.3 м² • Этаж: 19 • Формат: евро-3 • Отделка: MR Base (white box — идеальный холст под твой стиль) • Ключи: уже получены До D2 Трикотажная — всего 5 минут пешком, удобный выезд на МКАД и Волоколамское шоссе, до Кремля 30 минут без пробок по прямой. Юридическая чистота • 1 собственник • Без обременений • Материнский капитал не использовался • Быстрый выход на сделку О комплексе City Bay — это не просто дом, а целый микро-мир: уютные дворы без машин, зелёные бульвары, собственная набережная, места для работы, спорта и отдыха. Для семей — отдельный бонус: гарантированные места в школах и детских садах, включая Курчатовскую школу прямо на территории. Это вариант для тех, кто хочет не просто квадратные метры, а ощущение уровня, пространства и будущего. Оперативный показ, ключи на руках. Звоните чтобы узнать подробности. Указанная цена, может быть скорректирована в ходе конструктивного диалога с заинтересованным покупателем! С21 Premium Property участник ассоциации AREA. Арт. 133437374



























































































