Первичная продажа



22 акции
Только на Циан
сдача ГК: 4 кв. 2029 года
Нагатинская
6 минут пешком
31 536 760 ₽
472 815 ₽/м²
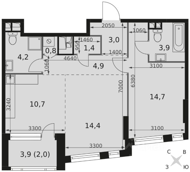
Продаётся просторная 2-комнатная квартира площадью 66,7 м², расположенная на 11 этаже корпуса 2.1 — идеальный выбор для тех, кто ценит эстетику высоты, панорамы города и современный премиум-класс.
С декабря 2025 года совместно со Сбер действует ипотечная программа с фиксированной ставкой 13,9% на весь срок кредитования. Также доступна программа рассрочки с комфортными фиксированными платежами от 60 000 рублей до октября 2028 года. Подробности — у менеджеров отдела продаж в онлайн-чате справа.
Первый Нагатинский — самый крупный жилой квартал в локации, формирующий новый облик района и задающий стандарты городского премиум-класса. Проект сочетает продуманную архитектуру, премиальные общественные пространства и масштабную инфраструктуру, создавая среду, где вдохновение и удобство встречаются ежедневно.
Транспортная доступность
Находится в сердце Южного округа Москвы — районе с уже сложившейся и богатой инфраструктурой. Внешняя среда проекта усиливает комфорт жизни: рядом расположены зелёные парки, современные спортивные объекты, торговые центры и престижные образовательные учреждения.
м. Нагатинская ~ 3 мин.
МЦК Верхние котлы ~ 5 мин.
Речной причал ~ 15 мин.
ТТК ~ 10 мин.
Садовое кольцо ~ 15 мин.
Благоустройство премиального уровня
Ландшафтные архитекторы бюро А4 создали систему взаимосвязанных пространств для отдыха, прогулок и гармонии. Уникальная wellness-зона вписана в природный ритм Москвы и формирует атмосферу спокойствия.
• 10 000 зелёных насаждений
• Японский сад
• Зона у огня с биокамином
• Зона у воды
• Арт-тропа "Променад"
• Воркаут-площадка
• Гамаки для отдыха
• Нетворкинг под открытым небом
Инфраструктура нового поколения
Квартал формирует современный формат городской жизни, объединяя приватность, удобство и пространство для развития. Всё расположено внутри проекта — без необходимости покидать территорию.
• Скай-бар на 28 этаже
• Гурме-вилла
• Приватный СПА и фитнес премиум-класса
• Тренажёрный зал и студии групповых тренировок
• Хамам и финская сауна
• Коворкинг-клуб
• Клубный лаундж
• Кинотеатр и сигарная комната
• Музыкальная студия
• Арт-зал с подиумом
• Детские комнаты, игровые зоны и творческие студии
• Круглогодичные детские площадки
• Пляжный клуб на берегу Москвы-реки
Образовательный кластер внутри квартала
Внутри квартала созданы пространства для образования, творчества и игр, где дети могут развиваться, раскрывать таланты и чувствовать себя в безопасности — не покидая территории своего дома.
Школа нового поколения на 1000 учеников
Лучший детский сад в Москве с бассейном
Тематическая детская площадка Гора Фудзияма и Большая волна Купить 2-комнатную квартиру в новостройке в районе Нагатино-Садовники в Москве.




















































































































