706 900 ₽/м²
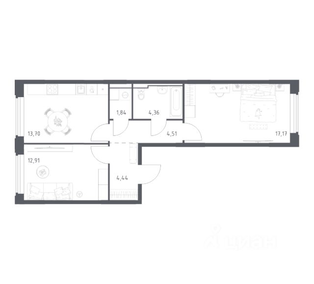
Прямая продажа от застройщика! Жилой Комплекс премиум-класса. Продаётся 2-к квартира номер 334 общей площадью 65.9 кв.м. на 20-м этаже 48 этажного здания. Предчистовая отделка. Цена с учётом скидки. Особенности квартиры: - Организуем показ в удобное для вас время! - Мастер-зона с гардеробной. Просторное место для отдыха и удобного хранения вещей. - Просторная спальня, в которой можно разместить большую кровать. - Угловая планировка - больше пространства для ваших идей. - Увеличенное остекление - больше света и простора в вашем доме. - Панорамное окно (1 и более) - раскрывает просторы вашего дома. - Угловое остекление - свет и воздушность в каждой комнате. - Просторная ванная - место для расслабления и уединения. - Постирочная - организуйте пространство для стирки и сушки вещей. - Евроформат - просторное и удобное жилье с отличной планировкой. - Гибкая планировка - создайте пространство по своему вкусу. - Место для игры/занятия спортом - идеальное пространство для активных детей. - Можно оборудовать 2 или более рабочих места - пространство для нескольких человек. - Можно сделать распашные двери - удобный доступ и стильный акцент. - Просторная мягкая зона - комфорт и уют для отдыха всей семьи. - Линейная кухня - функциональность и практичность в одном решении. - Наличие острова на кухне - удобство и стиль для вашей кухни. - Возможность добавить спальное место - дополнительный комфорт для гостей. - Просторная гардеробная - место для вашего личного пространства. - Ниша под шкаф - компактное и удобное место для вещей. - Лоджия - уютное место для отдыха и тишины. - Тёплая лоджия - пространство для отдыха в любое время года. Квартира с предчистовой отделкой. Вам не придется заниматься черновыми и трудоёмкими работы, а чистовую отделку и дизайн - сделайте на свой вкус. Информация о комплексе: Уникальная архитектура в форме трёхконечной звезды и разная высота корпусов обеспечивают большинству квартир выше уровня деревьев прекрасные видовые характеристики. В каждой квартире базовый пакет "Умная квартира" позаботится о защите от протечек и позволит управлять техникой голосом. А наличие кладовых помещений поможет поддерживать идеальный порядок и уют в вашем доме. Транспортная доступность: До метро "Проспект мира" - 3 минуты пешком, 4 минуты до СВХ, 9 минут до ТТК, 11 минут до МКАД, 12 минут до Садового кольца Внутренняя инфраструктура: Внешняя территория комплекса разделена на три зоны. Открытая входная группа объединяет кофейню, аптеку и салон красоты. Закрытый внутренний двор с уютными скамейками, шезлонгами и качелями создаёт атмосферу неторопливого отдыха. В восточной части - игровые и спортивные площадки для всех возрастов, вдохновлённые атмосферой детских фильмов. Квартира с предчистовой отделкой - ваш дизайн без черновых работ






























































































