464 789 ₽/м²
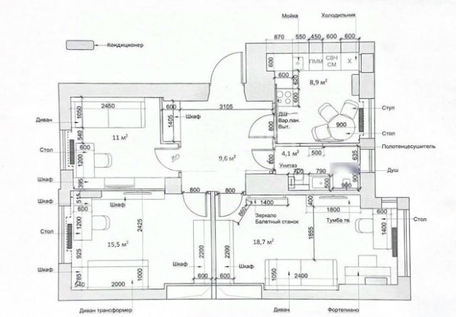
Продаётся квартира в Хамовниках, в 4 минутах пешком от метро "Спортивная" ! ПРОДАЖА БЕЗ КОМИССИИ ! Деятельность агентства застрахована. Если вы сейчас продаёте свою квартиру — наше агентство может выкупить её сразу. ПРО ДОКУМЕНТЫ: • Один взрослый собственник • Полная стоимость в договоре • Нет долгов и обременений • Свободная продажа ПРО КВАРТИРУ: • Квартира - РАСПАШОНКА расположена в тихом закрытом дворе • ВЫСОКИЙ первый этаж • Функциональная планировка с тремя изолированными комнатами: 18,2 м², 18,7 м² и 13,4 м². • ВЫСОКИЕ ПОТОЛКИ до 3 метров • Просторная входная группа / коридор 7.3 м² с антресолью — удобно для хранения, разгружает жилое пространство • Удобная отдельная кухня — 8 м², правильной формы • Объединённый санузел с полноценной ванной — 5.8 м² • Дом с толстыми стенами — отличная шумоизоляция и стабильный микроклимат: тепло зимой, комфортно летом. • Глубокие подоконники — редкая особенность домов этого типа. • Пространство легко адаптируется под разные сценарии жизни • Подходит как для проживания большой семьи, так и как инвестиционный объект • Возможность рассмотреть квартиру под коммерческое использование — в домах этого типа первые этажи часто переводят в коммерцию ПРО ДОМ: • Классический дом в историческом районе Хамовники • В 2024 году выполнен полный капитальный ремонт дома: обновлён подъезд, заменена крыша, обновлены внутренние коммуникации и др. • Чистый, ухоженный СКВОЗНОЙ подъезд • Закрытый зелёный двор, въезд под шлагбаум • По периметру камеры видеонаблюдения • Наземная парковка во дворе — всегда есть свободные места • Спокойные, интеллигентные соседи • Солидное окружение ПАРКИ И ИНФРАСТРУКТУРА: • Новодевичий монастырь • Парк Новодевичьи пруды • Парк Усадьба Трубецких в Хамовниках • Сквер Девичьего поля • Нескучный сад • Парк культуры • Воробьёвы горы • Прогулочные маршруты вдоль Москвы-реки • Саввинская набережная • Лужнецкая набережная • Новодевичья набережная • Олимпийский комплекс Лужники — спорт для взрослых и детей любого уровня • Фитнес-клубы в пешей доступности: World Class, X-Fit, Anatomya Fitness • Усачёвский рынок — 8 минут пешком, один из лучших гастрономических рынков Москвы. • Усачёвские бани 9 мин. пешком • Кафе, рестораны, Озон, ВБ, магазины — в шаговой доступности • Образование: — Школа 57 — одна из лучших школ Москвы, в соседнем дворе — Частная Филипповская школа (детский сад и школа) • Поликлиники и больницы — рядом • Район признан одним из лучших для семейной жизни в Москве • Высокая ликвидность недвижимости и инвестиционная стабильность ТРАНСПОРТНАЯ ДОСТУПНОСТЬ: • Метро Спортивная — 4 минуты пешком • Метро Фрунзенская — 10 минут пешком • МЦК Лужники — 7 минут пешком • Удобный выезд в центр города • Живописная пешая прогулка до Красной площади Торг уместен, но только после просмотра Звоните, отвечу на ваши вопросы и организую показ















































































