


Хорошая цена
Москва-Сити
6 минут пешком
137 500 000 ₽
1 258 005 ₽/м²
ЛОТ 25197. В продаже видовая квартира 109,3 кв.м. с дизайнерской отделкой в одном из самых востребованных премиальных комплексов Москвы — Capital Towers, на первой линии набережной Москва-реки.
Просыпаться здесь — значит видеть, как по реке проходят яхты и катера, а за окном открывается живая панорама центра столицы.
Преимущества:
• Панорамные окна в пол — максимум света с утра до заката, но без палящего солнца.
• Настоящий видовой формат: обзор на несколько сторон света;
• Прямые виды на ключевые доминанты Москвы: гостиница Украина, Белый дом, Новый Арбат, Москва-Сити, набережная, парк Красная Пресня, МИД, Храм Христа Спасителя;
• Удобная планировка: 2 мастер-спальни, 3 санузла;
• Ванная с панорамным окном — редкое решение для этого класса.
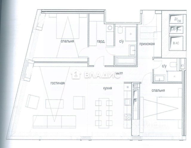
Планировка:
• входная зона с хранением и гостевым санузлом;
• кухня-гостиная с панорамными видами;
• 2 мастер-спальни со своими ванными и душевыми;
• 3 санузла.
Квартира укомплектована премиальной техникой Smeg (варочная панель, духовой шкаф, СВЧ, холодильник).
Сантехника Grohe и Duravit, теплые полы в зонах плитки.
Capital Towers — проект архитектора Сергея Скуратова: три башни по 61 этажу с выходом в парк Красная Пресня.
Инженерия: очистка воды, интеллектуальный климат-контроль, безопасность и видеонаблюдение 24/7. Консьерж-сервис.
Локация:
Москва-Сити, ЦМТ, Трехгорная мануфактура — в пешей доступности.
Рядом парки: Красная Пресня, Красногвардейские пруды, Декабрьского восстания.
Афимолл Сити, Азбука Вкуса Daily, рестораны, школы и фитнес-клубы премиум уровня.
Транспорт:
м. Москва-Сити — 6 мин., Деловой центр — 14 мин., Улица 1905 года — 15 мин., МЦД Тестовская.
Удобный выезд на набережную, ТТК и Садовое кольцо.
Документы
• Юридически чистая, 1 взр.собственник;
• готовы к сделке и сотрудничеству. АН Метриум_премиум - участник ассоциации агентств элитной недвижимости Area. Гарантия качества!
Редкий продукт: панорамные виды, много света и ощущение города у ваших ног.
Звоните — покажем сегодня.
Метриум Премиум - участник ассоциации агентств элитной недвижимости AREA.






























































































