


1 365 079 ₽/м²
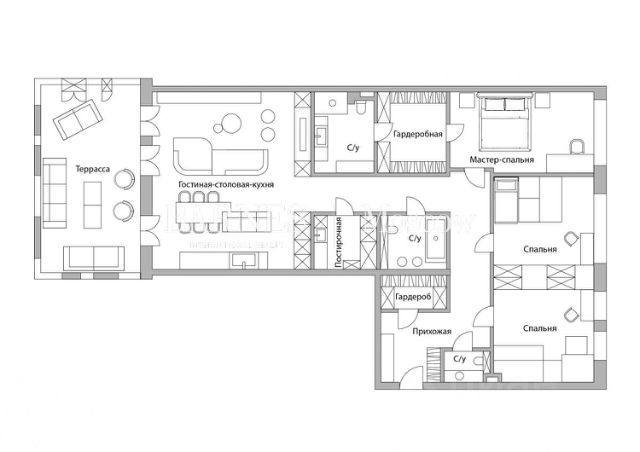
Лот 1000152. Евгения Валуева. Эксклюзив подписан. ЖК "Виктория". Предлагается современная 4-х комнатная квартира в клубном доме, Пожарский пер 5А. Функциональная планировка: уютная гостиная, многофункциональная кухня/столовая, полностью укомплектована встроенной бытовой техникой; 3 просторных спальни с собственным с/у, камин, постирочная, 2 балкона, гостевой с/у, прихожая. В квартире выполнена отделка в светлых тонах. Высокие потолки 3.1, большое количество окон. Имеется подземный паркинг. В наличии 2 м/м за отдельную стоимость. Территория дома огорожена и охраняема. Клубный дом выполнен в традиция архитектуры стиля модерн. Разработкой проекта занимался авторский коллектив архитектурной мастерской Павла Андреева. Развитая инфраструктура, удобная транспортная доступность. Свободная продажа, 1 взрослый собственник более 10 лет, никто не прописан. Бонус партнерам 50%. Есть презентации в pdf на русском или английском для партнеров. Член ассоциации агентств элитной недвижимости AREA. Продам 4-комнатную квартиру вторичка в районе Хамовники в Москве.


















































































































































