


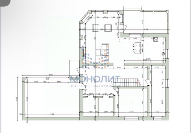
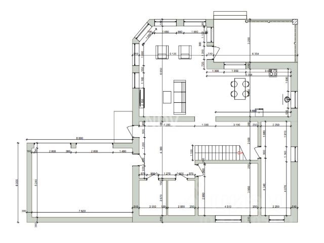
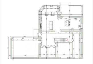
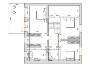
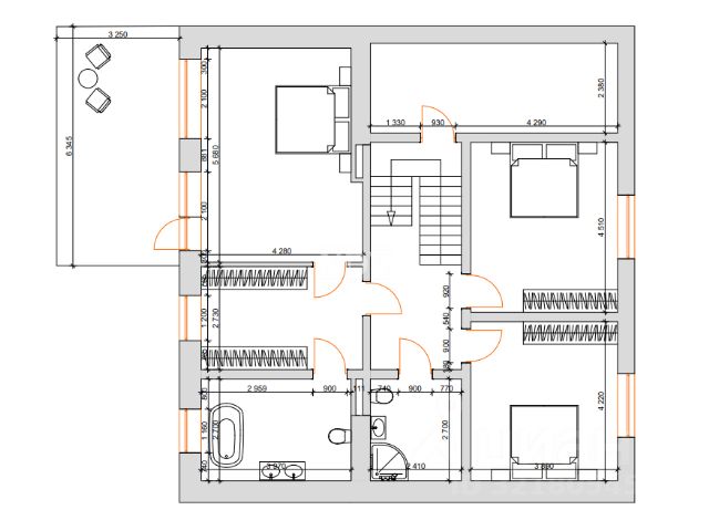
Лот 48564238. Изящный надежный двухэтажный кирпичный дом с "вторым светом". Закрытый охраняемый коттеджный посёлок бизнес-класса с широкими асфальтированными дорогами в Новой Москве. 25 км от МКАД по Калужскому шоссе. Поселок окружен лесом, свежий воздух, прекрасная экология, в 2 минутах пешком родник и ручей. Московская прописка! Всего 5 минут до г. Троицк, где в 2029 году откроется станция метро - рост инвестиционной привлекательности гарантирован! О доме: Построен из керамического кирпича, фасад облицован императорским кирпичом 1840-х годов. На 1 этаже располагается просторная гостиная 60 м² с "вторым светом", витражным остеклением, камином в центре и панорамным видом на сад и лес. В левом крыле кухня-столовая с выходом на террасу, справа кабинет с выходом в сад, ванная комната с сауной. Высокие потолки 3,2 м, в гостиной 7,8 м. На 2 этаже в левом крыле располагается мастер-спальня с выходом на балкон, просторной гардеробной и ванной комнатой. В правом крыле две детские спальни и отдельная спальня с личным санузлом. • Дом построен из поризованного кирпича, ширина 400 см, утеплитель пеноплекс 100 см, строился для себя — использованы только премиальные строительные и отделочные материалы. Окна Rehau с двойным стеклопакетом (3 стекла). Крыша мягкая кровля. • В доме установлены инсталляции Geberit, дизайнерские радиаторы, центральное кондиционирование. Котельная с немецким котлом Buderus. Теплый пол. Гараж на 2 автомобиля с прямым входом в дом Бонус: возможна отделка под ключ по дизайн-проекту собственника, Рассчитана смета расходов на отделку. Качественные строительные материалы: инженерная доска, европейская сантехника, двери массив/мдф, плитка италия/испания/индия. Стоимость 15 млн. рублей. Инфраструктура посёлка: • Собственный частный детский сад • Продуктовый и хозяйственный магазин • Теннисный корт, спортивный комплекс • Центральные коммуникации: газ, водоснабжение, канализация • Оптоволоконный высокоскоростной интернет Ваш шанс приобрести шикарный дом для своей семьи в классном поселке, по цене, которую вы не встретите на рынке! Свяжитесь прямо сейчас, объект не будет долго на рынке! Продам дом в коттеджном поселке Цветочный в Москве.



















































































