Первичная продажа
Онлайн-бронирование
сдача ГК: 2 кв. 2026 года
Филатов Луг
13 минут на транспорте
14 082 979 ₽
266 068 ₽/м²
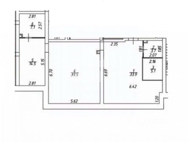
Строим кварталы для жизни с заботой о будущем. Предлагается 2-комнатная квартира комфорт-класса площадью 52.93 кв.м в корпусе 12 на 7-м этаже, в жилом комплексе "Цветочные Поляны".
Застройщик сдает квартиры с отделкой в нескольких вариантах: предчистовая, готовая, улучшенная или вариант без нее. Последний подойдет тем, кто хочет создать свой уникальный интерьер и ничем себя не ограничивать.
А если не хочется тратить время на ремонт, можно выбрать опцию - с отделкой. Перед тем как отдать ключи, застройщик установит натяжные потолки, поклеит обои под покраску, положит ламинат светлых тонов, а в санузлах - керамическую плитку и керамогранит.
Приобрести квартиру возможно по специальным акциям от застройщика, с текущими условиями акций можно ознакомиться в блоке "Акций".
Цена динамическая и может отличаться, уточняйте актуальность у застройщика.
"Цветочные Поляны" - жилой комплекс в Новой Москве, рядом с Валуевским и Ульяновским лесопарками.
В квартале есть лесопарковая зона площадью 5 гектаров, где можно заниматься спортом, кататься на велосипеде и просто гулять среди деревьев. Также в пешей доступности - Валуевский лесопарк, дойти до которого можно вдоль "берега" декоративного сухого ручья. Те, кто любит отдых у воды, всегда могут прогуляться до реки Незнайки.
В "Цветочных Полянах" предусмотрена образовательная инфраструктура для семей с детьми: уже построены первая школа и детский сад, в планах - строительство еще двух детских садов и второй школы. В квартале уже работают супермаркеты, кафе, салоны красоты, а в будущем появится свой торговый центр.
Дома высотой до 22 этажей построены по монолитной технологии. Рисунок на фасадах отсылает к традиционному искусству Староселья - плетению кружев из стекляруса.



















































































