184 597 ₽/м²
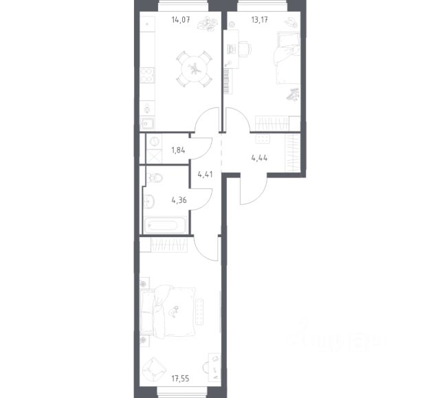
Строим кварталы для жизни с заботой о будущем. Предлагается 3-комнатная квартира комфорт-класса площадью 75,56 кв.м в корпусе 11.2 на 2-м этаже, в жилом комплексе "Прибрежный Парк". Застройщик сдает квартиры с отделкой в нескольких вариантах: предчистовая, готовая, улучшенная или вариант без нее. Последний подойдет тем, кто хочет создать свой уникальный интерьер и ничем себя не ограничивать. А если не хочется тратить время на ремонт, можно выбрать опцию — с отделкой. Перед тем как отдать ключи, застройщик установит натяжные потолки, поклеит обои под покраску, положит ламинат светлых тонов, а в санузлах — керамическую плитку и керамогранит. Приобрести квартиру возможно по специальным акциям от застройщика, с текущими условиями акций можно ознакомиться в блоке "Акций". Цена динамическая и может отличаться, уточняйте актуальность у застройщика. Жилой комплекс "Прибрежный Парк" находится в 9 км от МКАДа. Корпуса проекта — дома высотой 1217 этажей с комбинированными фасадами из кирпича и фиброцементных плит. Территорию "Прибрежного Парка" огибает река Пахра, рядом располагается Видновский парк. Здесь можно кататься на велосипедах, заниматься бердвотчингом, устраивать пикники на лужайках и любоваться деревьями из окон квартиры. Внутри проекта появятся спорткомплекс с бассейном, поликлиника, школа и 3 детских сада, один из которых уже открыт. Оставить авто можно на паркинге за пределами жилого комплекса. Выбрать "Прибрежный Парк" — значит сделать ставку на комфортную жизнь в окружении природы. "Прибрежный Парк" — это: 1. До МКАДа — 9 км 2. 15 минут ходьбы до ж/д станции Ленинская и 25 минут на авто до аэропорта Домодедово 3. Коробовский и Богдановский лес, река Пахра и Большой Людовинский пруд у дома 4. Собственная инфраструктура с построенными Школой и детским садом 5. Благоустроенная пешеходная набережная внутри проекта 6. Всесезонная игровая площадка PlayHub для детей всех возрастов 7. Безопасные игровые и спортивные площадки 8. Колясочные и кладовые 9. Безбарьерные входы в подъезды 10. Магазины и кофейни на первых этажах домов 11. Догхабы, лужайки, воркаут-пространства 12. Паркинг — за территорией комплекса 13. Также планах открыть еще несколько школ, детских садов, поликлинику, спорткомплекс с бассейном, клинический госпиталь "Мать и дитя"










































































