


427 195 ₽/м²
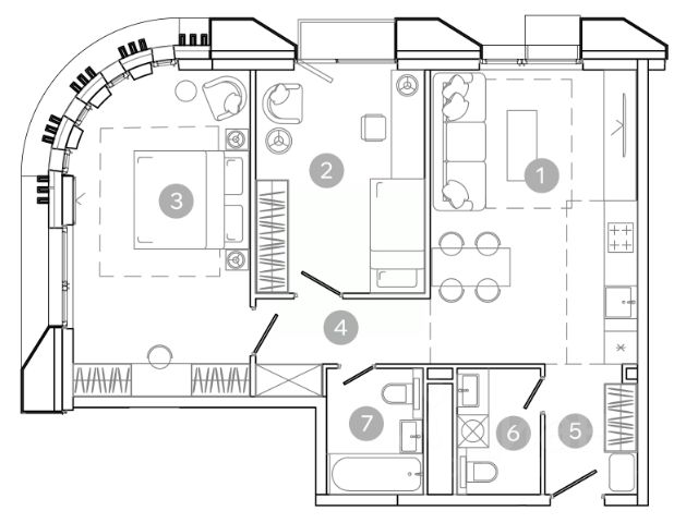
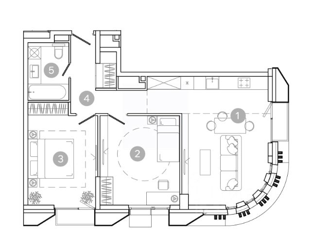
Ипотека для каждого! Полная стоимость кредита от 13,192% до 17,149%. Ставка от 0,11% в АО "Альфа-Банк", ген. лицензия ЦБ РФ 1326 от 16.01.2015. Ставка фиксируется на первые 12 месяцев, далее полная стоимость кредита от 22,022% до 24,599% ставка 21,59%. Первоначальный взнос — от 20,1% от стоимости квартиры. Срок кредитования — от 4 до 30 лет. Ипотека на весь срок! Полная стоимость кредита от 23,396% до 26,058% со ставкой 14,5%! Первоначальный взнос —от 20,01% от стоимости квартиры. Срок кредитования — от 3 до 30 лет. АО "Банк ДОМ.РФ" универсальная лицензия Банка России 2312 от 19.12.2018. Скидка 7% при покупке квартиры! Цена указана с учетом максимального размера скидки. Продается 2-к квартира 55,5 кв.м. в ЖК "Семеновский парк 2" на 4-м этаже 26 этажного дома. Компания "РГ-Девелопмент" предоставляет скидку на квартиры в жилом комплексе. Акция действительна до 15.03.2026 включительно. Чтобы воспользоваться предложением, необходимо подписать договор на приобретение недвижимости до 15.03.2026 включительно. Компания "РГ-Девелопмент" вошла в ТОП-10 девелоперов по объёму введённого жилья в "Старой Москве" по итогам 2025 года. Прямая продажа от застройщика! Квартиры без отделки. Срок сдачи корпуса - 1 кв. 2026 г. ЖК "Семеновский парк 2" - это идеальное место для того, чтобы стать вашим домом. Проект расположен в исторической части Москвы вблизи Измайловского лесопарка, в 1 км от ЦАО. 4 станции метро отделяют вас от Красной площади и 15 минут на автомобиле - от Садового кольца.
























































































