


510 465 ₽/м²
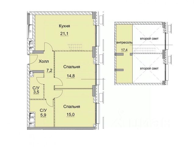
ЖК Событие 1 Продаётся прекрасная двух-уровневая квартира площадью в ЕГРН 86 м. Пространство с высотой потолков 6,3 м даёт уникальную возможность организовать полноценный второй этаж - возможен прирост площади до 40% (с согласованием возможно нарастить полностью второй этаж). Оперативный показ, ключи на руках. Виды на восточную сторону, в тихий, уютный двор. Площадь по полу 69 метров, площадь второго света (антресоли) - 17 метров. Функциональное планировочное решение: 1 этаж: - кухнягостиная; - гостевая спальня; - гостевой санузел; - основная спальня с собственной ванной комнатой. 2 этаж: - гардеробная; - санузел; - спальня/кабинет. Квартира без отделки, что позволяет воплотить все задумки в реальность. О жилом квартале "Событие" Квартал "Событие" - часть масштабного проекта комплексного освоения территории в Раменках. Корпус оборудован входной группой с ресепшеном, комфортными зонами ожидания. Для автомобилей предусмотрён двухуровневый подземный паркинг. Дом сдан в 2021 году, большая часть уже готовы, поэтому шумные работы в комплексе практически не ведутся. "Событие1" - современный жилой комплекс бизнескласса с малоэтажной застройкой и камерной атмосферой. В каждом дворе продуманы зоны для отдыха, спорта и детские площадки; на эксплуатируемых кровлях устроены общественные террасы с местами для отдыха. Рядом протянулась живописная долина реки Раменки, а главной точкой притяжения района станет одноимённый ландшафтный парк "Событие". С агентами не работаем. Звоните!



















































































