725 000 ₽/м²
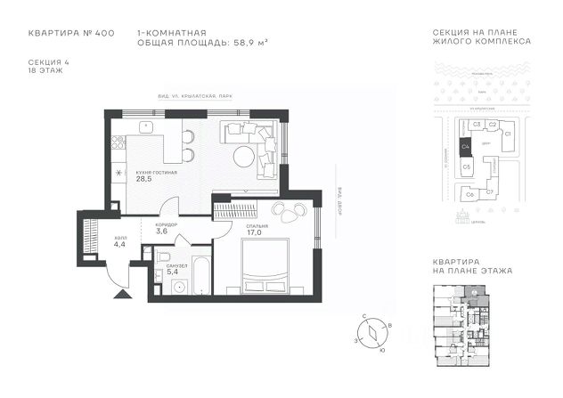
Арт. 135164476 **О комплексе** Клубный квартал "Крылатская 33" — новый проект премиум-класса на западе Москвы, который строится в районе с устоявшейся репутацией одного из самых экологически чистых в столице . Комплекс расположен на пересечении улиц Крылатская и Осенняя, в непосредственной близости от природного парка "Москворецкий", Крылатских холмов и набережной Москвы-реки . Архитектурная концепция разработана известным бюро "Остоженка" . Ансамбль включает семь секций переменной этажности — от 10 до 40 этажей — что позволило создать выразительный силуэт и избежать монотонной застройки . Завершение строительства запланировано на второй квартал 2027 года, выдача ключей — на четвертый квартал 2027 года . Территория комплекса площадью 1,4 гектара будет закрытой и полностью благоустроенной . Во дворе предусмотрены: - Детский плейхаб и спортивные зоны - Гипоаллергенный сад с 50 видами растений - Медитативные пространства и водные зоны с фонтаном - Архитектурная подсветка фасадов в вечернее время Для резидентов запроектирована развитая инфраструктура клубного формата: - Частный детский сад на 50 мест - Ресторан с панорамным остеклением на 80 мест - Коворкинг с кофейней и библиотека - Фитнес-центр со спа-зоной - Общественная гостиная для проведения мероприятий На первых этажах откроются магазины, аптека, химчистка, салон красоты, винотека и пункты выдачи заказов . Для автомобилей предусмотрен двухуровневый подземный паркинг на 271 машино-место, включая станции зарядки электромобилей, а также кладовые помещения (келлеры) . Безопасность обеспечивают система контроля доступа с Face ID, видеонаблюдение 24/7 и консьерж-сервис. Входные группы будут отделаны премиальными материалами и меблированы . **О квартире** Продается просторная однокомнатная квартира с европланировкой на 13 этаже. Общая площадь — 30,3 м². Планировка позволяет организовать полноценное разделение на приватную и общую зоны: - Холл: 3,4 м² - Кухня: 5,2 м² - Гостиная: 13,9 м² - Санузел: 3,4 м² - Гардеробная: 4,4 м² Отделка — черновая, что дает возможность выполнить ремонт с учетом личных предпочтений и не переплачивать за материалы и решения застройщика. **О районе** Крылатское — район с благоприятной экологической обстановкой: более половины его территории занимают парки и лесные массивы . В пешей доступности от комплекса: - Парк "Крылатские холмы" (5-7 минут) - Парк развлечений "Сказка" - Набережная Москвы-реки - ТЦ "Крылатский" - Школы, детские сады, поликлиники, аптеки Транспортная доступность: станция метро "Крылатское" — в 15-18 минутах ходьбы, выезд на Рублевское и Новорижское шоссе, МКАД . Квартира подойдет как для инвесторов, планирующих вложение средств в ликвидный объект в районе с высоким потенциалом роста цен, так и для семей с детьми, которым требуется функциональное пространство в экологически чистом и обустроенном районе .
















































































