


377 826 ₽/м²
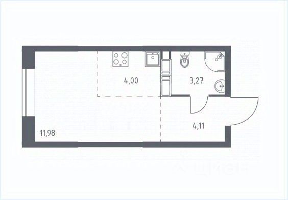
Id 61921. **Современная студия с готовым ремонтом в новом монолитном доме на Золотошвейной** Этот объект — идеальный пример того, как даже на 23 квадратных метрах можно создать полноценное, стильное и комфортное жилое пространство. Квартира-студия в новом монолитном доме, сданном в 2023 году, предлагает не просто стены, а полностью готовое решение для жизни. Высокие потолки 2,8 метра и качественный европейский ремонт создают ощущение простора и света. Вас ждет продуманная планировка с отдельным санузлом и собственной лоджией, выходящей в тихий двор. Полная меблировка, включая кухонный гарнитур и корпусную мебель, позволяет заселиться в день покупки, в квартире все остается. Жилой комплекс "Цветочные Поляны" обеспечивает надежность и тишину благодаря монолитной технологии. На втором этаже восьмиэтажного дома вы оцените удобство пассажирского и грузового лифтов. Окна во двор гарантируют приватность и спокойную атмосферу, что редкость для столицы. Это современное жилье, где каждая деталь — от ремонта до инженерии — продумана для комфорта. Район Золотошвейной улицы — это баланс уютной жилой среды и развитой инфраструктуры. В шаговой доступности расположены магазины, кафе, аптеки и банки. Несколько станций метро находятся в 20-25 минутах езды, обеспечивая отличную транспортную доступность до ключевых линий метрополитена и деловых центров Москвы. Данная студия станет отличным первым шагом на рынке недвижимости для молодого специалиста или студента, который ценит время и хочет избежать хлопот с ремонтом. Для инвестора это привлекательный актив с потенциалом стабильной долгосрочной аренды благодаря готовности к заселению и локации. Предлагаем вам лично оценить все преимущества этой современной квартиры. Свяжитесь для организации просмотра, чтобы сделать шаг к приобретению своего обустроенного уголка в Москве.

























































































