


Народное Ополчение
6 минут на транспорте
Тестовская
11 минут на транспорте
210 000 000 ₽
Клубные резиденции River Residences расположены в одном из самых зелёных и камерных районов Москвы — на территории природного памятника регионального значения "Серебряный Бор". Проект бережно интегрирован в ландшафт исторического места, где архитектура не конкурирует с природой, а становится её продолжением.
Архитектурную концепцию разработало бюро SPEECH под руководством Сергея Чобана. В пластике фасадов сочетаются строгая геометрия и мягкие линии, создавая ощущение уединённости и статуса. Ключевой материал ансамбля — португальский мраморизованный известняк с авторскими орнаментами, вдохновлёнными темой гребли, что подчёркивает близость к воде и спортивную историю локации.
Комплекс реализован с использованием современных технологий. В резиденциях предусмотрена приточно-вытяжная вентиляция с системой очистки воздуха, климат-контроль и панорамное остекление с энергосберегающим покрытием, обеспечивающее высокий уровень комфорта при бережном отношении к окружающей среде.
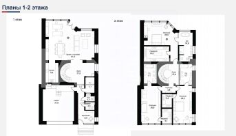
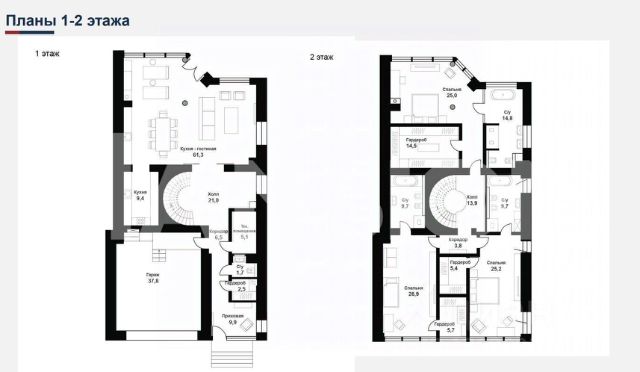
Трёхэтажный таунхаус площадью 236,5 кв. м отличается продуманной планировкой. Высокие потолки, большое количество окон и просторный холл формируют ощущение объёма и света. Кухня-столовая в американском формате плавно переходит в гостиную, создавая единое пространство для жизни и приёма гостей. На втором и третьем этажах расположены спальни и дополнительные комнаты, которые легко адаптировать под кабинет или приватную зону отдыха. Предусмотрены две кладовые, несколько гардеробных на каждом уровне и не менее трёх ванных комнат.
Окна ориентированы на три стороны — во внутренний двор комплекса и на живописную панораму Москвы-реки, которая находится в непосредственной близости. Купить таунхаус в округе СЗАО в Москве.
































































































