


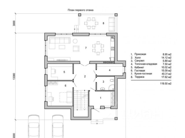
Лот: 9917720. ЭКСКЛЮЗИВ NF GROUP. Дом с мебелью 414.7 кв.м на участке 12.2 cот. Кол-во спален: 5. Кол-во с/у: 4. Поселок "Калужские усадьбы". Калужское шоссе, 9 км от МКАД. Без комиссии для покупателя. Новый дом в стиле знаменитого американского архитектора Фрэнка Ллойда Райта, в живописном месте коттеджном поселке Калужские Усадьбы. Современная архитектура, большие площади остекления, высокие потолки 3.6 м., продуманная планировка. Конструктив: фундамент - монолит/плита, стены кирпич, снаружи отделка фасада штукатурка, цоколь - декоративный камень, кровля мягкая черепица Certain Teed LandMark (USA). Теплые полы по всей площади 1-го этажа и в санузлах и гардеробной 2-го этажа. В котельной установлен газовый и электрический котлы, а также система водоочистки. стеклопакеты Rehau, вся инженерная сантехника качественная Германия (TECE, Hansgrohe, Kludi), осветительные приборы Flos (Италия). Коммуникации центральные: магистральный газ, эл-во 25 кВт (3 фазы), водоснабжение, канализация. Отдельно установлен профессиональный генератор. 1 этаж: кухня-гостиная с выходом на террасу, спальня, два с/у, гардеробная, постирочная комната, прихожая, большой холл, гараж на 2 авто, котельная; 2 этаж: мастер-блок (спальня, гардеробная, ванная комната, выход на балкон), 2 спальни и с/у, кабинет (спальня), спортивный зал 102 кв.м. Совмещенный с домом просторный гараж на 2 авто (но можно поставить и 4), с хозяйственной зоной, включая душевую кабину для собаки. Установлена кухня с островом, столешницы выполнены из искусственного камня, бытовая техника Bosch (Германия) - холодильник, индукционная панель, посудомоечная машина, морозильник, духовка. Участок 12,2 сотки правильной формы с удобной въездной группой. Выполнен ландшафтный дизайн, высажены деревья, кустарники, сделаны дорожки, установлена система автоматического полива. Охраняемая и огороженная территория посёлка, с собственным КПП и интеллектуальной системой доступа,у величенные проездные и пешеходные зоны, собственная прогулочная зона с альпийской горкой и живыми рыбками, в домах проектом предусмотрена установка лифтов, проведены все центральные коммуникации,развитая инфраструктура, высокая транспортная обеспеченность и доступность (метро Столбово).Поблизости расположены торгово-развлекательные центры ИКЕА, "Мега" и "Ашан". Рядом в поселке Воскресенское находятся все необходимые объекты инфраструктуры школа, спортивно-развлекательный центр, центр диагностики, дом отдыха с пляжем у реки Десны, продуктовые магазины, банки, салоны красоты и рестораны.




































































































