


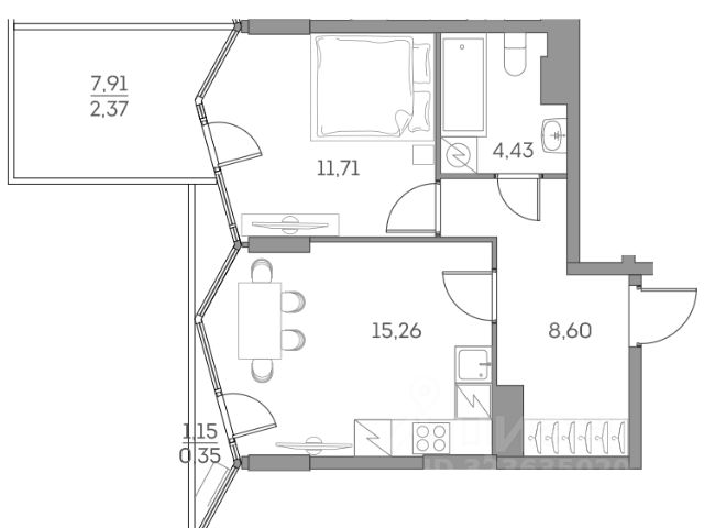
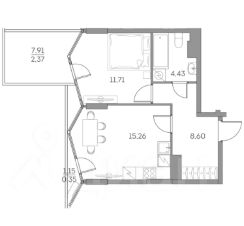
527 649 ₽/м²
Продажа от застройщика. Продается уютная однокомнатная квартира на 19 этаже современного жилого комплекса Бисайд 2.0. Вид из окон: во двор и на улицу. Срок сдачи: 2 кв. 2027 г. Квартира с лоджией. Отделка WhiteBox: - Вам не придется заниматься черновыми работами. - Возможность реализовать любой дизайн-проект. Расположение: В Бисайд 2.0 все необходимое - в шаговой доступности, не нужно тратить много времени на дорогу до работы, школы и поликлиники, походы в магазины и кинотеатры. Квартал расположен на пересечении ключевых транспортных магистралей Москвы, что позволяет быстро и легко добраться до любой нужной локации. Выбирайте наиболее подходящее занятие или попробуйте все! - Спортивные центры - Ретейл на первых этажах - Событийная площадь с амфитеатром - Дворовые площадки для активностей Транспортная доступность: - 5 минут на машине до ТТК - 7 минут на машине до Садового кольца - 7 минут пешком до станции "Нижегородская Внутренняя инфраструктура Бисайд 2.0: - Своя школа на 825 учеников - Просторное и светлое гранд-лобби - Коворкинг на открытом воздухе - Детский клуб Akvilon Kids - Подземный паркинг - Колясочные и велосипедные - Сити-боксы для хранения - Профессиональная управляющая компания Преимущества: - Технология энергоэффективности Termo-S, снижающая теплопотерю домов и позволяющую экономить на электроснабжении - Soundstop - технология дополнительной шумоизоляции на 39 дБ в квартирах с WhiteBox и чистовой отделкой - Система умного дома inHome 3.0 позволит контролировать коммунальные расходы, оплачивать счета и пользоваться услугами, не выходя из умного дома - Vent-In - система циркуляции воздуха в каждой комнате













































































































