Первичная продажа



7 акций
Только на Циан
Онлайн-бронирование
дом сдан
Петровский Парк
16 минут пешком
25 899 840 ₽
-8%28 152 000 ₽
634 800 ₽/м²
Рассрочка 0%. Первый платёж 30%, второй - не позднее 31.12.2026 г.
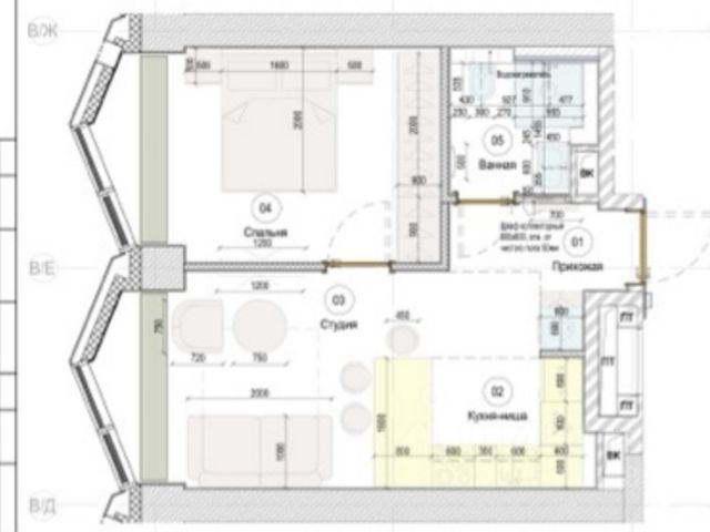
Продаётся 1-комнатная квартира 40.8 кв.м. в ЖК "Петровский парк II" на 5-м этаже 25 этажного дома.
ЖК "Петровский парк II" — жилой комплекс в Савёловском районе, где город ощущается иначе. Здесь история и масштаб Москвы не давят, а задают фон для спокойной, уверенной жизни рядом с центром. Это место, где статус читается не в громких формулировках, а в окружении, архитектуре и ощущении пространства.
Коротко о важном:
• Район с глубоким историческим контекстом и парковым окружением;
• 5 минут пешком до метро "Динамо", рядом с деловой и культурной жизнью города;
• Редкое сочетание: энергия мегаполиса и тишина зелёных аллей;
• Архитектура от бюро Синтаксис с пластикой форм и индивидуальным характером фасадов;
• Панорамные виды на город и зелёные массивы Петровского и Тимирязевского парков;
• Закрытый двор без машин, вдохновлённый эстетикой дворцовых садов;
• Просторные входные группы с высокими потолками и выверенной, респектабельной эстетикой;
• Частный детский сад во дворе;
• Подземная парковка и кладовые;
• РГ-Девелопмент - ТОП-20 крупнейших застройщиков Москвы.
Расположение комплекса формирует особое ощущение свободы выбора. Утром - прогулка по тенистым аллеям Петровского парка, днём - работа и встречи в деловых кластерах поблизости, вечером - культурные события, рестораны и городские пространства в нескольких минутах пути. Здесь расстояния измеряются не километрами, а шагами от дома.
Архитектура "Петровского парка II" задумана как современный архитектурный акцент района и одновременно как уважительный диалог с исторической средой. Асимметричные объёмы, волнообразные элементы и игра света и тени создают выразительный, но сдержанный силуэт. Архитектура наполнена воздухом и визуальным ритмом, оставаясь спокойной и уверенной.
Общественные пространства продолжают эту логику. Два парадных вестибюля с высокими потолками и благородной цветовой палитрой воспринимаются как пространства, где хочется замедлиться: встретить гостей, перевести дыхание после дня или просто почувствовать уровень среды, в которой вы живёте.
Внутренний двор комплекса - это отдельный мир, закрытый от машин и городского шума. Продуманное благоустройство территорий отсылает к регулярным дворцовым садам: геометрия аллей, зелёные "кабинеты", цветники и камерные зоны отдыха создают разные сценарии для повседневной жизни. Здесь органично соседствуют детские игровые пространства, спортивные зоны и тихие места для отдыха.
На территории комплекса расположены магазины, кафе и рестораны, а также частный детский сад, встроенный в общую структуру двора. Подземная парковка и кладовые поддерживают ощущение порядка и цельности пространства.
















































































































