340 580 ₽/м²
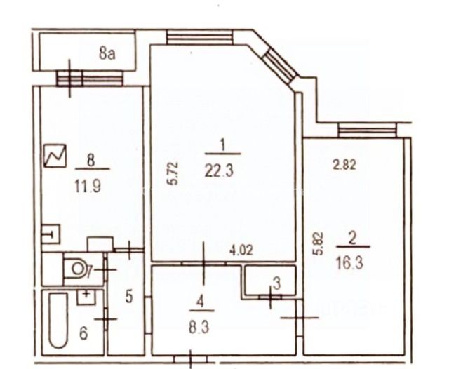
Номер в базе: 12005405. Быстрый показ. Прямой диалог с собственником. Квартира физически свободна. В экологически чистом районе, в кирпично-монолитном доме ЖК "Лазаревское", с видом на парк светлая квартира с современной удобной планировкой. Кухня, встроенная техника и мебель остаются. Выполнены: дополнительная звукоизоляция полов, натяжные потолки, стены окрашены. В доме подземный паркинг (можно снять м/м). ИНФРАСТРУКТУРА: - Парк Южное бутово в шаговой досутпности - Школа 1492 во дворе - Школа 1450 Олимп — топ ЮАО - Детские сады в шаговой доступности - Поликлиника 121 в шаговой доступности - Пятёрочка, Перекрёсток, Магнит, Озон - Аптеки, салоны красоты, кафе, рестораны Спорт и отдых в районе: - Фитнес-клубы и спортивные комплексы - Спорткомплекс Кант — горные лыжи, сноуборд - Велосквер Нагорный — BMX, скалодром - Парк Гавриково, пруды, прогулочные зоны - Кинотеатр Ангара — 4 кинозала ТРАНСПОРТНАЯ ДОСТУПНОСТЬ: 8 минут пешком до метро Бунинская аллея 11 минут на машине до метро Потапово ЮРИДИЧЕСКИ ЧИСТАЯ: Полная стоимость в договоре. Один взрослый собственник. Без обременений. ДКП от 2011 года, приобреталась без ипотеки, без применения материнского капитала, не в браке. Юридическое сопровождение сделки. Пишите или звоните прямо сейчас, чтобы договориться о показе квартиры вашей мечты. Код пользователя: 182446 Продается 2-комнатная квартира элитные на улице Адмирала Лазарева в Москве.










































































