


190 000 ₽/м²
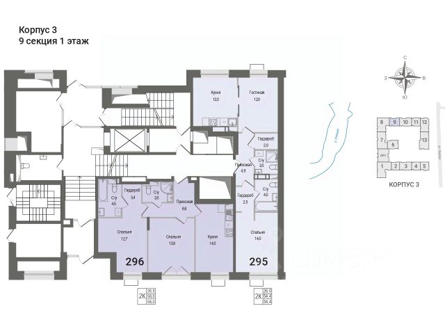
Продается 2-комнатная квартира 42 в строящемся ЖК "КИНОКВАРТАЛ", Корпус 1. Квартира расположена на 1 этаже, общая площадь 66,8 кв.м. Дом находится в тихом зеленом районе города, на берегу реки Клязьмы. Невысокая этажность, секции от 4 до 8 этажей, все оснащены лифтом. Авторская архитектура, безбарьерная среда, функциональные планировки классического и евро-формата, есть уникальные форматы — квартиры в 2-х уровнях. В ряде квартир потолки выше 3-х метров, панорамные окна, "французские балконы". Каждый может выбрать что-то своё — жизнь с видом на реку или на красивый закрытый двор "без машин". Жилой "Киноквартал" — это квартал у воды с обширной благоустроенной набережной, прогулочными пешеходными и вело-дорожками, смотровыми площадками и пляжем. Помимо существующей инфраструктуры окружения, в самом ЖК будут функционировать различные социальные и коммерческие объекты: муниципальный детский сад на 120 мест с собственной обширной территорией и зонированием под игровые и спортивные занятия детей; кабинет врача общей практики; физкультурно-оздоровительный комплекс; различные торговые помещения и предприятия услуг. В 15 минутах от ЖК строится большая новая муниципальная школа. Жилой комплекс граничит с территорией реконструируемого санатория с бассейном, SPA и лечебными услугами. Рядом с ЖК Киноквартал расположены остановки общественного транспорта, 2 ж/д станции (от 15 минут), также в 2028 году запланировано открытие МЦД-5 "Болшево".

























































































































