


567 640 ₽/м²
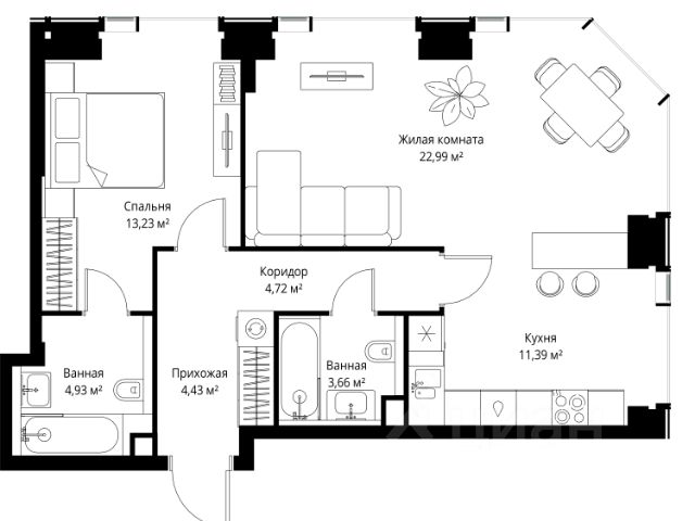
Продаётся 2-комнатная квартира 73.8 м². В жилом районе Алиа на 16-м этаже 28-этажного дома. Жилой район Алиа — это дома бизнес-класса у слияния Москвы-реки и Сходни. Алиа находится в Покровском-Стрешневе, экологически чистом районе на престижном северо-западе столицы. Район возводится на бывшей территории Тушинского аэрополя, где никогда не было промышленного производства. Алиа — это район разностороннего развития, спроектированный по принципу WORK.LIVE.PLAY.LEARN. Это "15-минутный город", где вся необходимая для комфортной жизни инфраструктура — на расстоянии приятной прогулки. У района удобное расположение: отсюда меньше 10 минут пешком до станций метро "Спартак" и "Тушинская" и всего полчаса на автомобиле до центра города или аэропорта Шереметьево. Архитектурную концепцию Алиа разработало бюро SOM (Skidmore, Owings & Merrill), авторы знаменитой "Бурдж-Халифа". В Алиа больше 140 планировочных решений, среди которых — редкие для Москвы форматы: квартиры с окном в ванной, пентхаус, сити-юниты и таунхаусы. Почти половина территории района отдана под благоустройство. В Алиа три парка: Линейный парк с кафе и магазинами, Центральный парк с амфитеатром, сухим фонтаном и большим плейхабом для детей всех возрастов и Прибрежный парк на собственной набережной, одной из самых длинных в Москве. В каждом урбан-блоке — закрытый внутренний двор с гипоаллергенными растениями и детской площадкой. В лобби каждого жилого корпуса в Алиа оборудована зона ожидания, колясочная, гостевой санузел и лапомойка для домашних животных. За стойкой ресепшена резидентов и их гостей встречает консьерж. Центральное лобби урбан-блока — это стильное общественное пространство с коворкингом, лаундж-зоной и кофе-пойнтом. Это "вторая гостиная" жителей урбан-блока и одно из мест, где формируется комьюнити Алиа. Два ключевых объекта инфраструктуры в Алиа — это спорткомплекс "Чкалов Арена", где представлены 25 видов спорта, и самый большой в стране бизнес-парк класса A, благодаря которому району обеспечено быстрое развитие.









































































































































