Первичная продажа
С отделкой
сдача ГК: 4 кв. 2026 года
Подольск
7 минут на транспорте
12 246 069 ₽
147 330 ₽/м²
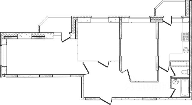
Продается 3-к квартира площадью 83.12 кв. м с черновой отделкой. Квартира находится на 8 этаже 22 этажного дома, в новом жилом комплексе "Онегин", расположенном по адресу: Московская область, г. Подольск, ул. Садовая 3, корп. 1А.
"Онегин" - комфорт в деталях. Проект от федерального застройщика "Развитие" расположился в центральной части Подольска - города-спутника столицы. Жилой комплекс состоит из 10 секций переменной высоты (20 - 22 этажа) и включает в себя 510 квартир, собственную инфраструктуру, закрытый благоустроенный двор-парк. Прекрасный баланс города и природы - ЖК "Онегин".
Расположение
Пешком:
- 5 мин. до остановки "Красная горка";
- 10 мин. до склона у реки Пахры;
- 30 мин. до центра Подольска;
- 30 мин. до МЦД "Силикатная" (или 15 мин. на автобусе).
На автомобиле:
- 3 мин. до проспекта Ленина с выездом на Симферопольское шоссе;
- 10 мин. до МЦД-2 "Подольск";
- 10 минут до горнолыжного комплекса "Красная Горка";
- 30 мин. до ст. метро "Бульвар Дмитрия Донского";
- 35 мин. до МКАД.
Благоустройство
- большой приватный двор-парк;
- всесезонная растительность: взрослые деревья, кустарники, травы, цветочные клумбы;
- декоративные камни и многоуровневое освещение для уютной атмосферы;
- мощеные тропинки с деревянными скамейками для отдыха;
- площадки для малышей с безопасным покрытием;
- яркие игровые комплексы для подростков;
- спортивный корт для футбола и баскетбола;
- многофункциональная воркаут-зона;
- уютные места для чтения или работы в тишине.
Комфорт и безопасность
- монолитно-кирпичные дома с высокой тепло- и шумоизоляцией;
- витражные окна, наполняющее квартиры и подъезды светом;
- стильные и просторные входные группы;
- вход в подъезд без ступенек и перепадов, комфортный доступ для родителей с колясками, пожилых людей и маломобильных жителей;
- на первом этаже предусмотрены просторные колясочные;
- 2 пассажирских лифта и 1 грузовой в каждом подъезде;
- система охраны и круглосуточное видеонаблюдение.
Инфраструктура и окружение
- подземный паркинг на 262 машино-места, спуститься к автомобилю можно прямо с вашего этажа на лифте - быстро и удобно в любую погоду;
- гостевые парковочные места на прилегающей территории;
- кладовки расположены на -1 и -2 этажах, хранить сезонные вещи легко и безопасно: доступ - напрямую с вашего этажа на лифте;
- школы, частные и муниципальные детские сады, магазины, кафе и все сервисы бытовых услуг в шаговой доступности;
- на первых этажах - коммерческие помещения, все необходимое рядом;
- 3 фитнес-центра, стадионы "Зенит" и "Подолье", 4 взрослых и детских бассейна;
- торгово-развлекательные центры "Капитолий", "Галерея", "Кварц";
- парк культуры и отдыха имени В. Талалихина, музей-заповедник "Подолье", горнолыжный комплекс "Красная Горка", исторические усадьбы "Остафьево" и "Дубровицы" и другие места для семейного отдыха.









































































