Первичная продажа
Онлайн-бронирование
дом сдан
Крымская
8 минут на транспорте
37 222 309 ₽
532 508 ₽/м²
КВАРТИРЫ С КЛЮЧАМИ БЕЗ РИСКОВ!
Прямая продажа от застройщика!
Жилой Комплекс бизнес-класса на набережной возле Нагатинского причала.
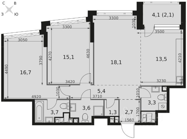
Продаётся 3-к квартира номер 260 общей площадью 69.9 кв.м. на 9-м этаже 28 этажного здания. Без отделки. Цена с учётом скидки.
Особенности квартиры:
- Организуем показ в удобное для вас время!
Квартиры с ключами без рисков!
- Мастер-зона с санузлом и гардеробной. Всё для вашего комфорта и удобства, включая личный санузел и гардероб.
- Угловая планировка - больше пространства для ваших идей.
- Мало квартир на этаже - уединение и тишина.
- Окно в ванной - натуральное освещение для уюта и комфорта.
- Увеличенная ширина окна/окон - больше света и визуального простора.
- Увеличенное количество окон - дополнительное освещение и свежий воздух.
- Окно над кухонным фронтом - светлое и удобное пространство для готовки.
- Угловое остекление - свет и воздушность в каждой комнате.
- Гостевой санузел - комфорт и удобство для ваших гостей.
- Душ помимо ванной - дополнительное удобство для вашей семьи.
- Гибкая планировка - создайте пространство по своему вкусу.
- Место для игры/занятия спортом - идеальное пространство для активных детей.
- Просторная мягкая зона - комфорт и уют для отдыха всей семьи.
- Линейная кухня - функциональность и практичность в одном решении.
- Возможность добавить спальное место - дополнительный комфорт для гостей.
- Гардеробная - удобство для хранения и организации вещей.
Квартира без отделки. Чистый холст для воплощения интерьера вашей мечты.
Информация о комплексе:
ЖК "Роттердам": идеальная транспортная доступность для любого настроения. Пешая доступность до метро, удобный выезд на Варшавское шоссе к ТТК и Садовому кольцу, а также живописная Нагатинская набережная с маршрутом до Кремля. Выбирайте метро, автомобиль, трамвай или велопрогулки вдоль реки - всё под рукой.
Транспортная доступность:
Всего в 5 минутах пешком до метро Нагатинская и 8 минутах от МЦК Верхние Котлы. Рядом Аэроэкспресс до метро Домодево. До ТТК 2,2 км и 4,9 км до Садового кольца.
Внутренняя инфраструктура:
ЖК "Роттердам": идеальный баланс работы и отдыха на Нагатинской набережной. Коворкинги, детские площадки и игровой центр для всей семьи. Рядом - 5 парков, спортивные и деловые центры в шаговой доступности.
Архитектура сочетает высотные и малоэтажные здания без ощущения "каменных джунглей". Панорамные виды из окон верхних этажей и прямой выход к Москве-реке. Уединённость, безопасность и комфорт для тех, кто ценит личное пространство и время.
Квартира без отделки - чистый холст для вашего интерьера.













































































