С мебелью
Алтуфьево
14 минут пешком
32 500 000 ₽
444 596 ₽/м²
Код объекта: 2058074.
Уникальное предложение на рынке недвижимости Москвы!
Описание квартиры:
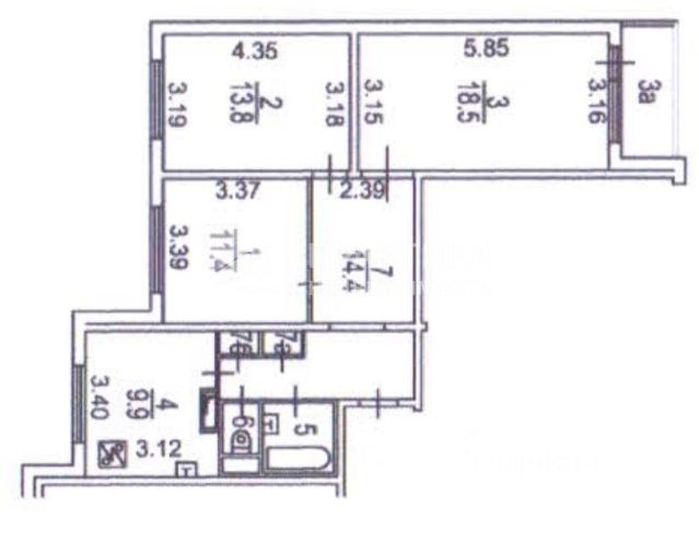
Продаётся шикарная трёхкомнатная квартира площадью 73,1 кв. м на 16-м этаже 24-этажного панельного дома, с отличным обзором на Москву!
Дом построен в 2006 году. К
апремонт произведён в 2023 году.
Адрес: Новгородская улица, 37.
Дизайнерский ремонт, включающий в себя полы из дуба, двери из качественных материалов, натяжные высокие потолки (2,8 м) тканевые!
Большая кухня-гостиная 30.9 м. и уютные комнаты (11,2 + 11,0 кв. м) создают атмосферу уюта и комфорта.
Узаконенная перепланировка.
Вся мебель оставляется за исключением двуспальной кровати в спальне (11.2.м.)
Премиальная бытовая техника: ASKO (посудомоечная машина, варочная панель и духовой шкаф), Miele (стиральная и сушильная машины), широкоформатные ТВ.
Итальянская кухня со встроенными полками. В наличии водонагреватель на 80 л, подсобное помещение в прихожей.
Входная дверь итальянская оснащена видеокамерой.
В квартире сделана качественная шумоизоляция.
Окна выходят на улицу и во двор, обеспечивая естественное освещение и приятную атмосферу.
Квартира оснащена всем необходимым для комфортного проживания: имеется балкон и лоджия, один раздельный и один совмещённый санузел, где душевая кабина соседствует с ванной!
Дом и двор:
В подъезде консьерж, входная группа оснащена домофоном и скамейкой.
Культурные соседи.
Наземная парковка обеспечивает удобное размещение автомобиля.
Транспортная доступность:
Расстояние до станций составляет: Алтуфьево - 14 минут.
На транспорте - 4 минуты до МЦД Лианозово.
Удобный и быстрый выезд на автомобиле на Алтуфьевское шоссе и МКАД.
Инфраструктура рядом:
За домом расположен Парк "Алтуфьево" с рекой Самотёка, Усадьба "Алтуфьево", в шаговой доступности Ландшафтный заказник "Лианозово", что придаёт местоположению особое значение, умиротворение.
Развитая инфраструктура в пешей доступности. Крупные торговые сети, ТРЦ "Весна" аптека, школа, пункты временной выдачи заказов, фитнес-центр, МФЦ и т. д.
Отличное расположение в одном из экологичных районов Москвы делает эту квартиру привлекательной для семей и молодых специалистов. Не упустите шанс стать владельцем этой прекрасной, созданной со вкусом и богатой квартиры!
Условия продажи:
Доккументы основания: Договор купли-продажи.
Полная стоимость.
Обременения отсутствуют.
Прямая продажа.
Работать с МИЭЛЬ выгодно и надёжно:
Мы гарантируем безопасную сделку и юридическую поддержку нашим клиентам.
Поможем одобрить ипотеку с сниженной ставкой.
Позвоните нам прямо сейчас, чтобы узнать больше и записаться на просмотр.










































































