


732 500 ₽/м²
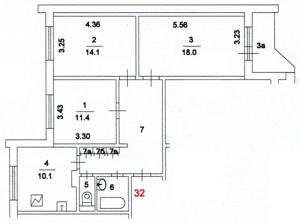
В продаже — двухкомнатная квартира с чистовой отделкой, общей площадью 91,1 кв. м. Квартира расположена на пятом этаже тринадцатиэтажной секции корпуса класса Адвансд в новом районе СберСити, который строит Сбер. Дом находится на второй береговой линии Москвы-реки. Сочетание элегантной архитектуры от ведущего итальянского бюро и передовых технологий на всех уровнях — от квартиры до инфраструктуры района. Отделка фасадов корпуса класса Адвансд выполнена из природного камня, глазурованной плитки и алюминия. В квартирах предустановлена система "умный дом" — комплекс решений, объединяющий квартиру, дом и прилегающую территорию. Жильцы смогут регулировать климат и освещение голосом или со смартфона, а также управлять сценариями освещения по заданным параметрам. Проведены работы по улучшению шумоизоляции, установлены двухкамерные стеклопакеты с алюминиевым профилем и скрытыми створками. В санузлах — тёплый пол. В доме расположены: • уютное лобби, • лапомойка, • общественная терраса, • коворкинг для жителей, • собственная спортивная студия, • колясочная и велосипедная комната на первом этаже, • детская игровая комната, • подземный паркинг. СберСити — это новый жилой и деловой район на западе Москвы, в одном из самых экологически чистых и престижных мест столицы. Это первая в России и крупнейшая в мире инновационная городская среда, созданная по международным стандартам зелёного проектирования. Здесь внедряются решения в области энергоснабжения, вакуумного мусороудаления, тестирования зелёных технологий, а в дальнейшем — системы искусственного интеллекта для управления домами и городской инфраструктурой. Строительство проекта началось в 2021 году, заселение первых корпусов — с лета 2024-го. Общая площадь территории — 461 га, из них более 2,5 млн кв. м жилья и около 833 тыс. кв. м офисных пространств. Будет построено 7 школ, 13 детских садов и 2 поликлиники. В СберСити будут жить 65 тыс. человек и работать 70 тыс. Развитием территории занимается АО "Рублёво-Архангельское", входящее в группу Сбер. СберСити — место, где хочется жить, работать и растить детей. Переезжайте в СберСити!

























































































































