355 281 ₽/м²
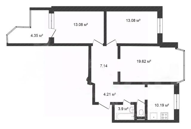
Светлая, просторная трехкомнатная квартира с мебелью в ЗАО г. Москвы. Удобная планировка с просторной жилой зоной. Потолки 2,70 м, серия П-44. Один собственник, 1978 г.р., без обременений. Никто не прописан. Квартира приобретена в 2016г., основание возникновения права собственности - договор купли-продажи. Мат. капитал не использовался. Полная стоимость в договоре, строго безналичный расчет. Прямая продажа. Собственник будет лично присутствовать на сделке, по желанию и за счет покупателя возможно нотариальное оформление сделки. Изолированные спальные комнаты, большая кухня, застекленная лоджия с видом на город, высокие потолки и большие окна создают ощущение света и простора. При ремонте использовались только качественные импортные натуральные материалы. На полу штучный итальянский паркет. В коридоре вместительный встроенный шкаф-купе, кухня оборудована встроенной техникой (варочная поверхность, посудомойка, духовка, вытяжка, фильтр питьевой воды, водонагреватель). Санузел совмещен, оборудован раковиной, унитазом и огромной ванной-джакузи. Вся система водопровода была заменена на современную в прошлом году. Входная дверь качественная, уплотнитель не пропускает звуки и запахи, замок двухконтурный. В доме 2 лифта: пассажирский и грузовой. Подъезд чистый без посторонних запахов, в 2024г был проведен косметический ремонт подъезда. Идеальное расположение для семьи с детьми - рядом частная Ломоносовская школа, а также крупный образовательный комплекс ГБОУ Школа 1400, которая включает в себя пять школьных и девять дошкольных зданий. Ломоносовская школа занимает высокие позиции в независимых рейтингах лучших школ Москвы и России. ГБОУ Школа 1400 стабильно занимает 1-е место в районе Можайский по результатам ЕГЭ, входит в ТОП 71-170 лучших школ города и регулярно получает Гранты Мэра Москвы. Все необходимые магазины, кружки, универсальный Дворец Спорта "Крылья Советов" в шаговой доступности. Для внимательно следящих за своим здоровьем - рядом поликлиники, стоматологии и Городская клиническая больница имени М.Е. Жадкевича. Для автомобилистов - прямой выезд на проспект Багратиона, СЗХ и МКАД. Рядом остановка аэроэкспресса в Шереметьево. Большое количество парковочных мест. Уважаемые риэлторы! Свои предложения пишите в сообщениях, заранее спасибо!










































































