


547 900 ₽/м²
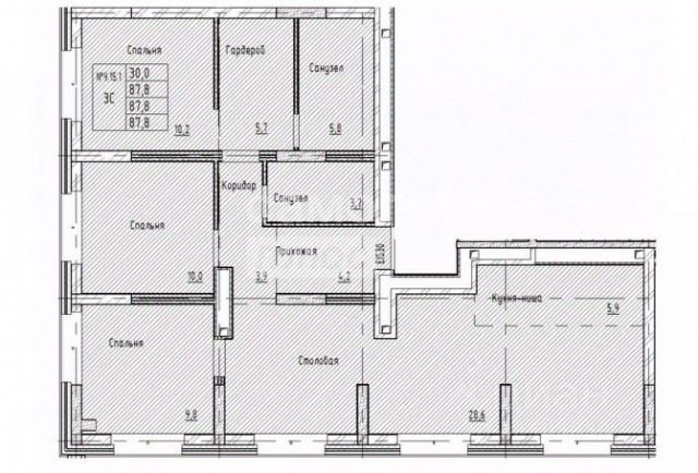
В продаже просторная и светлая квартира с кухней-гостиной и четырьмя спальнями в жилом комплексе бизнес+ класса СТОУН Сокольники. Идеально подойдет большим семьям: здесь личное пространство будет как у детей, так и у родителей. Одну из комнат можно оборудовать специально для приема гостей. Проект расположен рядом с парком "Сокольники" в пешей доступности от метро. В нескольких километрах от комплекса находятся удобные выезды на ТТК и Садовое кольцо, обеспечивающие быстрый доступ в разные части Москвы. Транспортная доступность: - 10 мин. до м. "Сокольники" и "Электрозаводская" - 12 мин. до парка "Сокольники" - 2 км до ТТК - 6 км до Садового кольца Архитектурная концепция проекта разработана архитектурным бюро WALL. Жилой комплекс состоит из трех разновысотных башен с увеличенной площадью остекления, которая позволит насладиться городской панорамой и видами на парк "Сокольники". Планировки квартир в СТОУН Сокольники создавались с учетом разнообразия современных сценариев жизни в городе. В проекте предусмотрены просторные кухни-гостиные, изолированные мастер-спальни, планировки для семей с детьми разных возрастов. Благодаря грамотному зонированию можно насладиться как уединением, так и временем с семьей. В проекте СТОУН Сокольники большое значение придается бытовому комфорту будущих жителей: потолки высотой 3,1 м, расширенная торговая и социальная инфраструктура, собственный подземный паркинг и частный детский сад на закрытой территории. Во всех входных группах предусмотрены помещения для временного хранения СИМ, лапомойки, гостевые санузлы, а также комнаты матери и ребенка. На каждом этаже появятся колясочные для дополнительного удобства семей с маленькими детьми. STONE - девелопер коммерческой и жилой недвижимости классов бизнес и премиум в Москве с 19-летним опытом. Сегодня занимает лидирующую позицию на офисном рынке (рейтинг РБК). В портфеле девелопера представлено 3 млн кв. м построенных, строящихся и проектируемых объектов, из которых более 1 млн кв. м находятся в стадии строительства. Компания имеет самый масштабный проектный портфель офисной недвижимости класса А на московском рынке (данные NF Group) и возглавляет топ устойчивых девелоперов, согласно исследованию FResearch - Forbes. В настоящий момент девелопером представлено 17 бизнес-центров класса А, а также 4 жилых комплекса бизнес+ класса. ID.18050



















































































