Первичная продажа



С отделкой
Онлайн-бронирование
дом сдан
Хорошёво
20 минут пешком
62 416 084 ₽
588 276 ₽/м²
Прямая продажа от застройщика!
Жилой Комплекс премиум-класса.
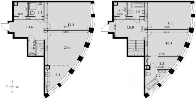
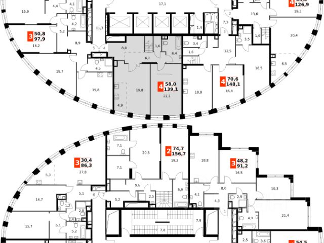
Продаётся 4-к квартира номер 408 общей площадью 106.1 кв.м. на 21-м этаже 44 этажного здания. Предчистовая отделка. Цена с учётом скидки.
Особенности квартиры:
- Организуем показ в удобное для вас время!
- Мастер-зона с санузлом. Уют и комфорт в одном пространстве.
- Просторная спальня, в которой можно разместить большую кровать.
- Угловая планировка - больше пространства для ваших идей.
- Увеличенное количество окон - дополнительное освещение и свежий воздух.
- Гостевой санузел - комфорт и удобство для ваших гостей.
- Душ помимо ванной - дополнительное удобство для вашей семьи.
- Евроформат - просторное и удобное жилье с отличной планировкой.
- Место для игры/занятия спортом - идеальное пространство для активных детей.
- Можно оборудовать рабочее место - комфорт для работы и учёбы.
- Линейная кухня - функциональность и практичность в одном решении.
- Возможность добавить спальное место - дополнительный комфорт для гостей.
- Просторная гардеробная - место для вашего личного пространства.
- Ниша под шкаф - компактное и удобное место для вещей.
- Лоджия - уютное место для отдыха и тишины.
Квартира с предчистовой отделкой. Вам не придется заниматься черновыми и трудоёмкими работы, а чистовую отделку и дизайн - сделайте на свой вкус.
Информация о комплексе:
Премиум-класс на берегу Москвы-реки с панорамными видами. Всего 20 минут до Москва-Сити на речном трамвае без пробок. Умный дом с защитой от протечек и голосовым управлением. Современная звукоизоляция и технологии для комфорта. Прямой выход на набережную и уникальный дизайн.
Транспортная доступность:
В 50 м до новой станции метро "Звенигородская". Вторая улица от ЦАО и соседство с Москва-Сити. Все виды общественного транспорта, в том числе речные трамвайчики, в пешей доступности
Внутренняя инфраструктура:
Сердце квартала - центральный бульвар, где кипит жизнь. Престижные школы, вузы, магазины и развлечения в минутах езды. Рядом: муниципальные ДОУ и школы, включая с изучением английского, 5 медучреждений, ТРЦ "Хорошо!" и "Авиапарк", фитнес-клубы World Class, горнолыжные склоны "Лата Трэк", ледовый дворец и 7 природных парков.
Квартира с предчистовой отделкой - ваш дизайн без черновых работ































































































