Уютная атмосферная дача в экологически чистом месте, в СНТ "Рабочий", участок 22, район д. Воронино. Легко добраться по Ярославскому шоссе. 68 км от МКАД и 12 км от г. Сергиев Посад. В экологически чистом районе со смешанным лесом (грибы, ягоды, птицы, воздух!), в 5 минутах езды до озера Торбеево и озера Малинники. Рядом круглый год родники с чистой водой. Недалеко от Гремячего ключа (Сергея Радонежского). Остановка находится в 100 метрах от ворот СНТ, дом в 200 м от главных ворот.
Дом 2х-этажный, светлый, площадь 98 м2. Возведён из бревна и бруса. 2-й этаж-каркас. Отделка светлым канадским сайдингом. Глубокий ленточный фундамент, внутри дом обшит вагонкой. Установлены большие окна из ПВХ. Индивидуальный проект.
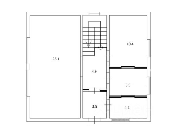
Планировка: 1-й этаж: веранда, увитая лимонником, две изолированные комнаты с кирпичной печью, кухня, холл - столовая.
2-й этаж: балкон 20 м2 , просторная светлая зона отдыха с высоким потолком, подсобное помещение - кладовка.
Между этажами установлена очень удобная прочная широкая лестница с перилами.
Коммуникации: электричество 2 фазы, 15 кВт. Дренажный колодец 3 кольца для сбора дождевой воды для полива. Вода - летний водопровод. 3 поливочных крана входят на участок с разных сторон. Спутниковое телевидение НТВ плюс. Отопление - кирпичная печь. с прозрачной дверцей. Вся мебель остается покупателям.
Участок 10 соток, прямоугольной формы, сухой, очень ухоженный и плодородный. Теплица 18 м2, высокие грядки и цветники. Со стороны дороги полностью огорожен новым забором. С хорошими соседями - светопроницаемые перегородки. Автомобильная мощеная площадка с отдельным въездом. На участке газон, дорожки из плитки. Плодоносят: яблони, груши, орех, ирга, слива, виноград, жимолость, крыжовник, чёрная и красная смородина, малина, актинидия, клубника. Много декоративных кустарников: лиственница на штамбе, можжевельники и туи. Рябина, калина Бульдонеж, клен Гиннала, спиреи и лапчатки, чубушник, сирень, пузыреплодник и дерены, хосты, гортензии, лилии, флоксы, пионы, розы и мн. др. Постоянное пышное цветение с апреля по октябрь!
Строения: На участке большая 2-х этажная баня из бруса с дровяной печью HARVIA, проточный водонагреватель в душевой, стиральная машина Zanussi, гамак, кресло, кровать. Перед баней наливной каркасный бассейн 3 м . Жилой верхний этаж, можно использовать для размещения гостей. Хозблок 10 м2 для инструментов и инвентаря, ЭКО туалет, летняя открытая кухня-веранда с мангалом, водопроводом и освещением.
До самого дома отличная дорога круглый год. СНТ огорожено. Вода артезианская с глубины 250 м. Имеются автоматические ворота с видеонаблюдением на въезде в СНТ. Дороги регулярно чистят в зимний период, своевременно вывозят мусор. Очень близко сезонный магазин. Можно подключить высокоскоростной интернет. Много домов используются для круглогодичного проживания. Регулярно приезжает продуктовая лавка, фермеры привозят мясные и молочные продукты. : Участок отмежёван, один собственник.