
Магистральный газ

Рядом лес

Центральная канализация
Арт. 113586414 Представляем вашему вниманию стильный загородный дом 10 с большой террасой, площадью 248м2, построенный по авторскому проекту известного архитектора на лесном участке размером 10 соток, расположенном в камерном коттеджном поселке Турово парк, в 25 км от Москвы по Волоколамскому шоссе.
Дом сочетает элегантность традиционного стиля и высокое качество строительных материалов. Стены возведены из кирпича, цоколь, терраса, крыльцо, дорожки выполнены из травертина, крыша- фальцевая кровля, все двери и стеклопакеты в доме- из натурального дерева.
Участок расположен среди живописной рощи, гармонично интегрирован в природный ландшафт. Экологичная застройка сохраняет красоту окружающей природы. Особенностью этого участка является возможность увеличения его площади до 20 соток.
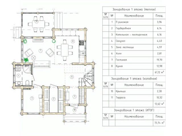
Планировка
Первый этаж: прихожая, гардеробная, кухня-столовая, гостиная, спальня с с/у, с/у, бойлерная.
Второй этаж: мастер-спальня с гардеробной с/у, 2 спальни, с/у, постирочная.
Камерный коттеджный поселок "Турово парк" расположен всего в 25 километрах от столицы по Волоколамскому или Новорижскому шоссе. Всего 40 минут - и Вы оказываетесь в уютном поселке, окруженном великолепным лесным массивом.
На территории 8 Га расположено 30 домовладений, площадью от 216 до 264 кв.м, с придомовыми участками от 9 до 13 соток. Архитектурный облик поселка представлен единым вневременным классическим стилем, разработанным архитектором с мировым именем - Тимуром Каримовым. Одним из важных принципов работы этого выдающегося архитектора - ни один дом, спроектированный им, не строится повторно, именно поэтому каждый дом в поселке "Турово парк" неповторим и уникален. Оказываясь в поселке, Вы словно попадаете в европейский пригород с его классической архитектурой, уютными улочками и обилием зелени.
Бережно сохраненный лесной массив, в сердце которого выстроен коттеджный поселок "Турово", дарит ощущение глубокого погружения в природу и тишину. Однако, у всех коттеджей есть и нечто общее — каждый из них построен из высококачественных и экологичных материалов.
Стены домов выполнены из керамических блоков с утеплителем, во внешней отделке использован кирпич, фундаментом служит ростверк с песчаной подушкой и монолитной плитой, низ периметра дома облицован травертином. Перекрытия и лестничные пролеты в доме выполнены из долговечного монолита.
Внутреннее пространство каждого коттеджа продумано до мелочей и максимально функционально. Высота потолков варьируется от 3 метров на первом этаже до 3.5 метров на втором, что буквально наполняет дома воздухом и светом. На первом этаже расположены кухня-гостиная-столовая с камином и выходом на террасу, где можно уютно отдохнуть всей семьей и с друзьями, для гостей предусмотрена отдельная спальня, которую можно использовать в качестве кабинета или комнаты для персонала. На втором этаже расположены спальные комнаты. В зависимости от выбранного проекта к дому прилагается навес на 2 автомобиля.
Отдельно стоит отметить великолепный природный ландшафт, бережно сохраненный застройщиком при строительстве "Турово парк". На каждом участке расположены многолетние ветвистые дубы, среди которых так приятно найти островок прохлады в жаркий летний день. Дубовая роща, окружающая поселок, создает ощущение тишины и покоя, так необходимое в быстром ритме современной жизни.