Первичная продажа



6 акций
Только на Циан
сдача ГК: 2 кв. 2027 года
Новопеределкино
4 минуты на транспорте
19 371 047 ₽
312 941 ₽/м²
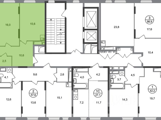
Продается 2-комн. кв-ра площадью 61.90 кв.м на 12 этаже 24 этажного монолитного дома в ЖК "ЛУЧИ" от Группа ЛСР. Семейный квартал "Лучи" расположен в ЗАО в одном из самых зелёных и благоприятных для жизни районов столицы Солнцево, который характеризуется отличной транспортной доступностью, развитой социальной инфраструктурой и обилием зеленых пространств в шаговой доступности.
В 300 метрах от жилых корпусов "Лучи" расположена станция метро "Солнцево" Солнцевской ветки. Рядом находится станция "Боровское шоссе" этой же линии метрополитена. Через район проходит множество маршрутов наземного общественного транспорта: за 15 минут на автобусе можно добраться до станции метро "Саларьево", а за 30 — до "Юго-Западной". Также рядом с "Лучами" — железнодорожные станции МЦД-4 "Солнечная" и "Новопеределкино".
Удобство перемещения автомобилистам обеспечивает близость трех важных проспектов: Ленинского, Вернадского и Мичуринского. В зависимости от дорожной ситуации, добраться в "Лучи" из центра столицы можно всего за 30 минут. С другой стороны, жилой комплекс удобно расположен между Киевским и Боровским шоссе.























































































































