Только на Циан
дом сдан
Улица Дмитриевского
8 минут на транспорте
12 950 000 ₽
309 069 ₽/м²
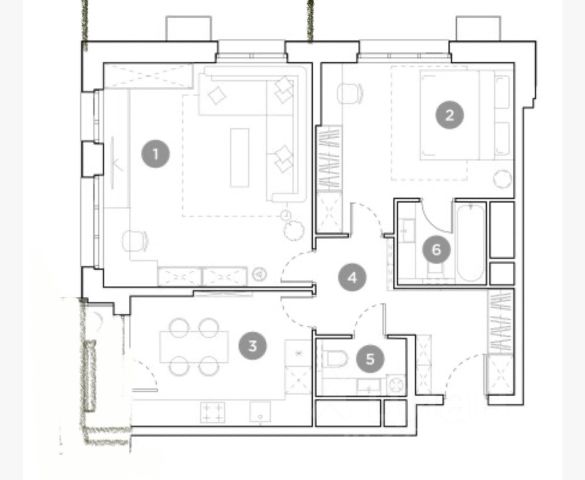
Продаётся 1-комнатная квартира в сданном доме (Липчанского, 10 (Квартал 13а корпус 17)), срок сдачи: IV-кв. 2022, общей площадью 41.9 кв.м., на 8 этаже. ЖК "Некрасовка" строится в активно развивающемся районе Москвы, в 5 км от МКАД.
Путь до центра Москвы будет занимать менее получаса.
Микрорайон Некрасовка граничит с подмосковными Люберцами. Совсем рядом расположены многочисленные озера, реки, пруды, которыми знаменита окружающая территория. Близость к метро и московская прописка по подмосковным ценам, а также качество и надежность ДСК-1 — главные преимущества ЖК "Некрасовка".
ЖК "Некрасовка" находится в одном из самых динамично развивающихся районов московского региона. Жителям комплекса доступна развитая инфраструктура прилегающих территорий —Жулебино, Кожухово, подмосковных Люберец. В микрорайоне Некрасовка строятся школы, детские сады, поликлиники, многофункциональный центр, физкультурно-оздоровительный комплекс, торговые центры, магазины шаговой доступности, кафе и рестораны. В пяти минутах езды на автомобиле находится мегамолл "Белая Дача" — один из крупнейших торгово-развлекательных центров Европы. Жителям ЖК "Некрасовка" будет доступна вся необходимая инфраструктура для полноценной и комфортной жизни.

























































































