318 182 ₽/м²
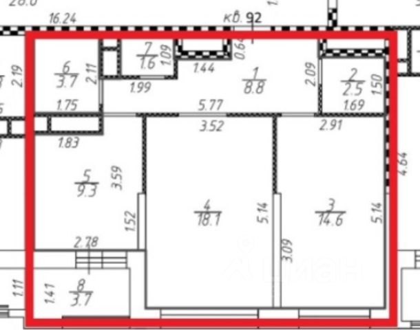
Продается прекрасная двухкомнатная квартира с панорамным видом и черновым ремонтом. Квартира : Комфортная планировка, большой холл 17 м с выходом на лоджию 2.5 м, два санузла, гардеробная, большая и светлая комната с эркером 18 м, просторная спальня 14 м, кухня 10 м. В квартире сделан черновой ремонт: 1) Полностью проложена новая проводка (медный кабель: 2,5 кв. под розетки 1,5 кв., под свет на потолке 4 кв. на кухню под плиту и духовку). Заложен провод под интернет в коридор и гостиную. 2) Стены отштукатурены и отшпатлеваны (4 слоя) под покраску. 3) В двух санузлах проложены трубы под раковины, гигиенические души, ванну, стиральную машину, а также установлены инсталляции под унитазы. Стены и полы выровнены под укладку плитки. 4) На кухне проложены трубы под мойку и посудомоечную машину. 5) Во всей квартире пол выровнен под финишное покрытие. Общие затраты по ремонту составили 1.6 млн. рублей. Дополнительно в квартиру приобретено, но не установлено: - Кухонный гарнитур фирмы "Дятьково кухня" длиной 3.0 метра с фасадами из крашенного МДФ, цвет индиго матовый, столешницей Легрон с интегрированной мойкой и вытяжкой круглой Weissgauff. -Инсталляция в комплекте с унитазами производство Германия. -Смесители, гигиенические души и душевая колонка AM PM. В доме расположен подземный паркинг на двух подземных этажах с доступом на лифте. Район: Квартира расположена в непосредственной близости от музея-заповедника Царицыно - одного из живописнейших мест Москвы и Дендропарка - замечательного места для прогулок всей семьей. Развитая инфраструктура: колледжи - финансовый, декоративно-прикладного искусства им. Фаберже, пищевой; идет активное строительство двух школ и детских садов; поликлиника в двух минутах ходьбы, станция скорой помощи; ТЦ Среда с сетевыми магазинами и DDX фитнесом; салоны красоты, аптеки и пр. На территории размещены детские площадки, обустроены автомобильные проезды, тротуары, зоны для отдыха и площадки для занятий спортом. Для автомобилистов здесь построены двухуровневые подземные паркинги, многоэтажные наземные паркинги и открытые площадки для временного стоянки автомобилей. Транспортное сообщение: Локация комплекса обеспечивает комфортное передвижение по городу. До станции метро "Царицыно" Замоскворецкой линии можно дойти за 3035 минут (2,4 км). В непосредственной близости расположены пассажирская платформа "Царицыно" и станция МЦД-2 (D-2). Улица Липецкая, проходящая по границе участка, позволяет выехать на Каширское шоссе и Пролетарский проспект. До МКАД всего 3,8 км. Дорога до Третьего транспортного кольца по Варшавскому шоссе занимает около 30 минут в отсутствие пробок, а до Садового кольца можно добраться примерно за 35 минут. В 2029 году планируется открытие станции м. Каспийская в шаговой доступности, Один взрослый собственник. Полная стоимость в договоре. Подготовлен комплект документов для сделки.















































































