


361 811 ₽/м²
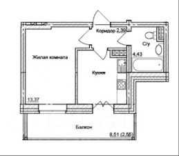
Цена указана с учётом скидки при 100%-й оплате, несубсидированной ипотеке, рассрочке (кроме программы "Рассрочка 0%"). В районе, утопающем в густой зелени лесов, многочисленных парков и скверов, продаётся студия площадью 21.20 кв.м с предчистовой отделкой. Квартира расположена на 6 этаже в жилом комплексе комфорт-класса Левел Лесной (компания Level Group/Левел групп). Отличная транспортная доступность: - 25 мин. пешком до станции метро "Пятницкое шоссе"; - 28 мин. на автобусе до станции метро и МЦД-2 "Волоколамская"; - 11 мин. на авто до МКАД; - 25 мин. на авто до ТТК. Продуманный архитектурный проект: - Концепция проекта Левел Лесной от бюро СПИЧ; - Высотность комплекса до 15 этажей с уникальными видами на лесные массивы и город; - Высота потолков до 3 м; - Современные окна высотой до 1,6 м, в части квартир предусмотрены окна в пол. Высота подоконников 0,6 м; Расположение: Жилой комплекс Левел Лесной строится в зелёной зоне ближайшего Подмосковья, г.о. Красногорск в посёлке Отрадное. Шаговая и автомобильная доступность до метро и больших транспортных артерий города. За 25 минут вы дойдёте до станции метро "Пятницкое шоссе", а за 20 минут на машине сможете доехать до станции метро "Тушинская". Район окружен роскошной зеленью лесов и парковых зон, занимающих территорию свыше 1 000 гектаров. Помимо благоприятной экологии, здесь множество возможностей для активного отдыха и поддержания физической формы. Облагороженная территории с полностью развитой инфраструктурой. На территории проекта находится детский сад и школа "Светлые Горы", которая входит в список лучших частных школ от Forbes Education (по данным на 2023г.). Кроме того, в пешей доступности расположено ещё 8 детских садов, а также запланировано открытие современной муниципальной школы. В непосредственной близости находятся сетевые супермаркеты и локальные магазины, аптеки, клиники, почта, библиотека, салоны красоты, рестораны, спортивные и творческие секции, развивающие детские центры. В 12 минутах пешком расположен торговый парк "Отрада" с продуктовым и строительным гипермаркетами, магазинами, кинотеатром и развлечениями для детей. Внутренняя инфраструктура: Мы знаем, как важно, чтобы магазины и сервисы были всегда рядом. В сданных корпусах жилого комплекса Левел Лесной уже расположена полностью готовая развитая инфраструктура. На первых этажах корпуса 27 предусмотрено ещё 14 коммерческих помещений. Благоустройство: Продуманное пространство и аура приватного европейского городка рождают чувство лёгкости и расслабления у каждого, кто попадает на территорию проекта. Концепцию общественных площадок разработали в партнёрстве два архитектурных бюро: "Хайлайт Архитектура" (Highlight Architecture) и "Скейп" (Scape). В безопасных дворах без машин каждый обязательно найдёт себе место для вдохновения, отдыха и спорта.









































































































































