


350 829 ₽/м²
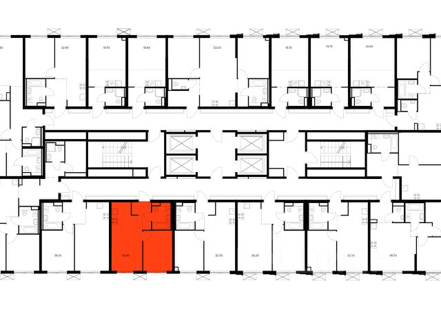
Продаётся студия площадью 36.2 кв.м на 13 этаже 22-этажного дома (Корпус 56.2) проекта ПИК Саларьево парк. Светлый просторный подъезд на уровне земли, функциональная планировка, большие окна, . Продажа по переуступке прав. Ключи уже в конце этого года. Чистовая отделка. Вид во двор. Полная стоимость в договоре. Оперативный выход на сделку. Жилой район "Саларьево парк" расположен в Новой Москве, в четырёх километрах от МКАД по Киевскому шоссе. Две станции метро: "Саларьево" и "Филатов луг", — находятся в пешей доступности от проекта. Дойти до них можно за 510 минут. В квартале уже создана качественная среда, где есть абсолютно всё для полноценной жизни, работы и отдыха. Благодаря удобному расположению проекта всё важное будет рядом: детские сады, школы, кафе и рестораны, шопинг в торговых центрах, фитнес и даже аэропорт. Все корпуса в квартале гармонично сочетаются, образуя единую городскую среду. Между собой их объединяет невысокая этажность и натуральная цветовая гамма. Здесь приятно гулять и проводить время на улице всей семьёй. В "Саларьево парке" создана уникальная образовательная среда, включающая в себя шесть школ, рассчитанных на 6 250 учеников. Две из них уже открыты, их посещает 2 300 детей. Также на территории "Саларьево парка" находится 12 детских садов, один из которых с бассейном. Сейчас уже открыты 7 садов. В "Саларьево парке" открыта уникальная игровая площадка — PlayHub "Оригами". Здесь есть ручей, горка-труба и рельефные холмы. Взрослые смогут отдохнуть в уютном кафе, пока дети играют. Также на территории проекта есть SportHub — большая спортивная зона, разделённая по интересам и возрастам. Здесь можно заниматься разными видами спорта: футболом, баскетболом, волейболом и стритболом. Зимой центральную часть площадки превращают в каток. Во дворах-парках жилого квартала есть места для отдыха, детские и спортивные площадки. На первых этажах домов расположены магазины, кафе и полезные сервисы. Звоните! Подробности по телефону!















































































