Первичная продажа



6 акций
С отделкой
Онлайн-бронирование
Домодедовская
4 минуты на транспорте
23 270 000 ₽
309 524 ₽/м²
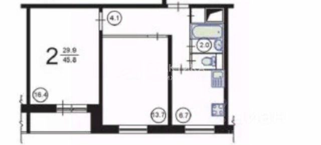
Квартира с кухней-гостиной и тремя спальнями в Квартале Герцена. Особенности планировки: балкон, вид во двор, гардеробная, окна на две стороны, предчистовая отделка, снизили цены до 31.05.
Квартиру можно купить онлайн.
В квартире выполнена отделка "под чистовую". Установлены окна с двойным стеклопакетом, радиаторы с терморегуляторами. На полу цементно-песчаная стяжка. В квартиры заведены кабели для интернета и ТВ. Входная сейф-дверь не требует замены. Организован поквартирный учёт энергоресурсов (водоснабжение, отопление, электричество).
Квартал "Герцена" расположен в Бирюлёве Восточном — районе на юге Москвы. Дорога до ТТК займет всего полчаса на автомобиле, до станции метро и ж/д станции "Царицыно" — 13 минут, а до автовокзала "Южные ворота" — 20 минут. До автобусных остановок можно дойти пешком.
В 2027-2028 году откроется новая станция метро "Лебедянская", дорога до неё займет всего 18 минут.
Общая площадь "Квартала Герцена" составляет 27,3 га. Дома состоят из разноуровневых секций высотой от 6 до 55 этажей с видовыми террасами и балконами. На территории квартала будет построена поликлиника, детский сад на 350 мест и воспитательно-образовательный комплекс на 1075 мест, а также рестораны, клиники, магазины и салоны красоты.
Объявление от застройщика. Ипотека, материнский капитал.
Обмен — один из способов покупки. Обмен подойдёт, если вы хотите быстро поменять старую квартиру на новую.
Получить ипотеку или рассрочку, а также обменять квартиру можно онлайн. Запишитесь на онлайн-презентацию по телефону или на сайте.
В проекте доступна программа обмена: мы выкупим вашу старую квартиру, направим средства на оплату новой и сопроводим сделку. Доступны опции: проживание до 30 месяцев, закрытие ипотеки, выделение детских долей, получение средств на ремонт. квартиры в нашей базе: ГРЦ01.1-Ж5.8.1. Купить квартиру с балконом в районе Бирюлево Восточное в Москве.

























































































