Первичная продажа
С отделкой
Онлайн-бронирование
дом сдан
Красногвардейская
16 минут на транспорте
5 862 088 ₽
258 242 ₽/м²
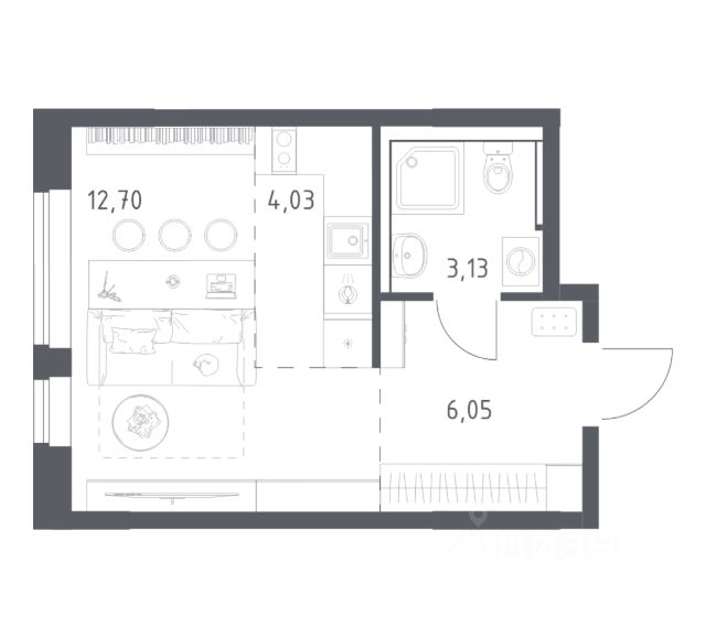
Строим кварталы для жизни с заботой о будущем. Предлагается студия комфорт-класса площадью 22.7 кв.м в корпусе 13.1 на 17-м этаже, в жилом комплексе "Пригород Лесное".
Застройщик сдает квартиры с отделкой в нескольких вариантах: предчистовая, готовая, улучшенная или вариант без нее. Последний подойдет тем, кто хочет создать свой уникальный интерьер и ничем себя не ограничивать.
А если не хочется тратить время на ремонт, можно выбрать опцию - с отделкой. Перед тем как отдать ключи, застройщик установит натяжные потолки, поклеит обои под покраску, положит ламинат светлых тонов, а в санузлах - керамическую плитку и керамогранит.
Приобрести квартиру возможно по специальным акциям от застройщика, с текущими условиями акций можно ознакомиться в блоке "Акций".
Цена динамическая и может отличаться, уточняйте актуальность у застройщика.
Жилой комплекс "Пригород Лесное" находится в 7 км от МКАДа. Все корпуса проекта не выше 17 этажей, в отделке фасадов используется кирпич в природных оттенках: сером, коричневом, черном и белом. Жизнь рядом с лесом - это новые впечатления каждый день. Здесь можно устраивать пикники на солнечных лужайках, ходить за ягодами, кататься на велосипедах по извилистым дорожкам. Для жителей - собственные детские сады и школы, поликлиника и больница, паркинги подземные с зарядками для электрокаров, отдельные многоэтажные паркинги и плоскостные парковки. Стройте комфортную и счастливую жизнь в "Пригороде Лесное" уже сейчас.
"Пригород Лесное" - это:
1. 15 минут на автомобиле до станции метро "Домодедовская" и 10 минут на автомобиле до МКАДа
2. 5 минут на автомобиле до Каширского шоссе и трассы А-105
3. Коробовский и Богдановский лес, река Пахра и Большой Людовинский пруд у дома
4. Экомаршрут в Коробовском лесопарке рядом с домом, который соединит кварталы: "Пригород Лесное", "Горки Парк" и "Богдановский Лес"
5. Выход в лес по благоустроенным экотропам
6. Детские площадки с безопасным покрытием и велодорожки на территории проекта
7. Прогулочный бульвар с центральной событийной площадью для проведения различных мероприятий
8. Спортхаб на территории проекта
9. Паркинги: подземные с зарядками для электрокаров, отдельные многоэтажные и плоскостные
10. Колясочные и кладовые помещения
11. Собственная инфраструктура с открытыми школами, детскими садами и поликлиникой
12. Смотровые площадки, прогулочные тропы, игровые и спортивные площадки, догхабы и собственный ландшафтный парк
13. Также планах открыть еще несколько школ, детских садов, больницу, отделение полиции, пожарное депо, торговый центр, спортивный комплекс, бассейн, мультиофис для всех жителей










































































