


425 537 ₽/м²
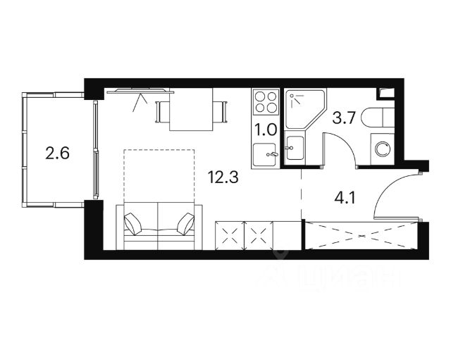
Продажа от застройщика. Продается уютная студия на 5 этаже 23-этажного современного апарт-комплекса Сигнал. Срок сдачи: 4 кв. 2026 г. Отделка: Апартаменты передаются в предчистовой отделке white box. Возможен заказ чистовой отделки. Мы выполним все инженерные и черновые отделочные работы, оставив вам самое приятное - создание индивидуального интерьера и неповторимого уюта. А если отпраздновать новоселье хочется как можно скорее, вы сможете заказать чистовую отделку в одном из двух цветовых вариантов: Beigestone или Greystone. Вам останется только завезти мебель и начать наслаждаться жизнью в Сигнал. Расположение: ЖК Сигнал расположен на перекрестке столичных маршрутов. По Сигнальному проезду легко выехать на Алтуфьевское шоссе, СВХ и проспект Мира. Транспортная доступность: - 3 минуты пешком до станции Владыкино - 15 минут на автомобиле до ТТК - Ботанический сад в 10 минутах ходьбы Внутренняя инфраструктура Сигнал: - Фитнес-центр на первом этаже - Игровая площадка и приватном дворе - Коворкинг и уединенные зоны для работы - Торговая галерея Преимущества: - SoundStop - Система защиты от шума, дополнительная шумоизоляция - Система умного дома InHome 3.0 - управление домом нажатием нескольких кнопок - Система Termo-S, позволяющая сэкономить на оплате теплоснабжения - Фитнес-зал позовлит поддерживать себя в форме - Лаунж-зоны, где можно расслабиться - Лобби-бар с большим выбором напитков и закусок - Гостиничный сервис и консьерж reception 24/7 для решения бытовых задач - Апартаменты обслуживает профессиональная управляющая компания - Арт-объекты во дворах для стильного контента Сигнал - это дом, - чья молодость духа и бодрый настрой заряжают всех, независимо от возраста - который задает абициозную планку с самого начала карьеры - где живут интересные события и встречаются хорошие люди





































































































