263 158 ₽/м²
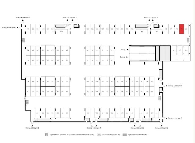
Продаётся машиноместо площадью 13,3 кв. м в закрытом, подземном, отапливаемом паркинге. Удачное расположение — соседнее место только с одной стороны, что обеспечивает дополнительное пространство и комфорт при парковке (174). Машиноместо находится прямо на въезде в паркинг, недалеко от выхода к лифту подъезда 10. Заезд максимально удобный — по прямой, без манёвров внутри паркинга. В собственности более трёх лет. Полная стоимость указывается в договоре.



















