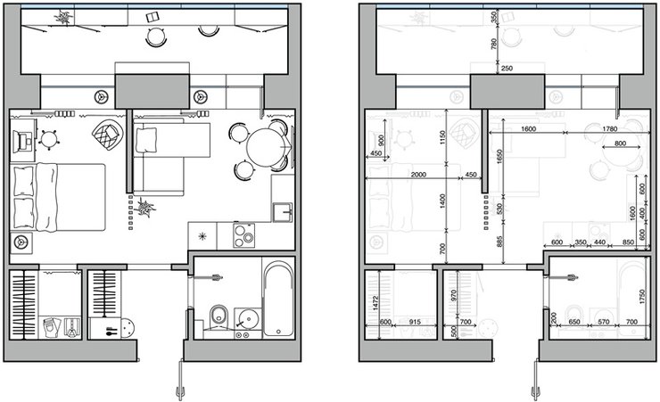
С чего начать: анализируем план квартиры
Прежде чем расставлять мебель, нужно понять, как устроено помещение. Для этого необходимо изучить план квартиры. Его можно запросить в БТИ, у застройщика или через портал «Госуслуги», заказав выписку из ЕГРН.
Когда документы будут на руках, нужно подробно рассмотреть их. Важнее всего обнаружить:
→ Несущие стены. Это самые толстые линии на плане, которые определяют по расположению: чаще всего это межквартирные стены и поверхности, перпендикулярные фасаду. Например, в проекте дома серии П-44 в их роли выступают внутренние стены, а в серии И-209а — наружные. Запросить технический план, где обозначены несущие стены, лучше всего в управляющей компании или БТИ.
→ Стояки. Отображаются как небольшие прямоугольники в санузлах и кухне. Как правило, они расположены в углах помещений.
→ Вентиляционные каналы, или вентканалы. Выглядят как узкие прямоугольники в стенах кухни и санузла. Их нельзя переносить, но можно наращивать.
→ Оконные проёмы. Самые широкие разрывы в стенах. Их нужно учитывать при планировании освещения.
→ Лоджии и балконы. Показаны как пристроенные к фасаду прямоугольники с тонкими ограждениями. Если прямоугольник не выступает за контур дома, то это лоджия, и её можно объединить с комнатой. А если балкон — это внешняя пристройка, перепланировка запрещена.
Перед тем как что-либо двигать, нужно понять, чтó ни при каких обстоятельствах двигать нельзя. Мы точно не двигаем несущие стены, стояки и вентканалы. А перенос некоторых коммуникаций, например радиаторов, нужно согласовать с УК.

На плане квартиры несущие стены изображают толще, чем перегородки, которые можно сносить. Фото: Green angel / Shutterstock / Fotodom
После полноценного разбора чертежа можно продумывать планировку. Предлагаем следовать простому чек-листу:
✔ Найдите ограничения. Обведите маркером все несущие стены, стояки и вентиляционные шахты. Эти элементы нельзя переносить и убирать.
✔ Изучите особенности освещения. Отметьте, куда выходят окна. Север даёт холодный стабильный свет, юг — обилие солнца, восток — яркое утреннее освещение, запад — приятные виды на закаты. Эта информация нужна при выборе местоположения тех или иных комнат. Например, кабинет можно сделать на востоке для бодрого рабочего утра, спальню для сов — на севере или западе.
✔ Проверьте реальные размеры. Даже на точном плане БТИ возможны расхождения до 5–10 см. Измерьте рулеткой все габариты, особенно ширину проёмов и коридоров.
✔ Проанализируйте шумовой фон. Спальню лучше разместить в самой тихой комнате. Для гостиной, где шум не так критичен, подойдёт помещение с окнами на улицу.
Сделайте рабочую копию плана и зафиксируйте на нём полученную информацию. Это особенно важно, если ваши замеры отличаются от значений в документах. Удобно использовать программы для планировки квартиры: они позволяют загрузить начальный чертёж, обвести его и затем изменить размеры. Можно убрать ненесущие стены и подумать, как расположить новые перегородки.
Принципы грамотной планировки: делаем пространство логичным
Планировка должна учитывать образ жизни жильца
Следует проанализировать свои привычки и потребности:
— Часто собираетесь с друзьями или родственниками → подумайте, не сделать ли свободную кухню-гостиную.
— Не любите готовить → на кухне можно выделить меньше места под гарнитур и больше под обеденную зону.
— Работаете дома каждый день → понадобится кабинет или перегородка, чтобы отделить письменный стол от гостиной или спальни.
У комнаты может быть две функции
Если делить внутреннее пространство по принципу «одна комната — одна функция», на кабинет и гардеробную места может не хватить. Приоритет обычно отдают гостиной и спальне. Но эти зоны легко совместить, например:
- Гостиная и кабинет → рабочий стол ставится у окна или за книжным стеллажом.
- Спальня и гардеробная → перегородка или карниз со шторами отделяют зону хранения.
- Спальня и кабинет → письменный стол стоит в нише или у изголовья кровати.
- Прихожая и гардеробная → делают встроенные шкафы во всю стену.
Для зонирования можно установить стеклянные или реечные перегородки. Если хотите разделить пространство визуально, используйте разную отделку стен, а также направленное освещение, которое выделит каждую зону.
Мебель расставляется по функциональным зонам
Чтобы организовать любую зону, используйте проверенный алгоритм. Определяем центральный объект, а второстепенные предметы размещаем вокруг него, обеспечив удобный доступ ко всему необходимому.
Например, в кабинете главный предмет — рабочий стол. Стеллаж для документов лучше поставить сбоку, а принтер разместить на полке над столом. Этот принцип избавляет от лишних перемещений по комнате. Его же можно использовать и для планирования гостиной, спальни или любого другого объекта.
Обычно главный объект в гостиной — это телевизор. Стройте композицию вокруг него: разместите перед ним столик и диван, повесьте снизу тумбу. Фото: ImageFlow / Shutterstock / Fotodom
Продуманная эргономика
Важно учитывать не только размеры мебели, но и свободное пространство вокруг неё:
- Проходы между мебелью должны составлять не менее 60 см.
- Перед шкафами и комодами оставляйте от 80 см свободного места, чтобы можно было полностью открыть дверцы и ящики.
- На кухне соблюдайте правило рабочего треугольника: расстояние между холодильником, мойкой и плитой должно составлять 120–180 см.
Рабочий стол и зону отдыха располагайте у окон, а для гардеробных и технических помещений достаточно искусственного света.
Интерьер может меняться вместе с вами
Выбирайте гибкие решения, если не уверены в планировке или любите перемены: модульную мебель, раздвижной стол, мобильные стеллажи на колёсиках. Они позволят легко подстроить пространство под новые увлечения или жизненные обстоятельства.
В этой планировке почти нет громоздкой мебели, которую сложно двигать. Если придут гости, большую комнату будет легко освободить и доставить дополнительные стулья с кухни и балкона. Фото: Green angel / Shutterstock / Fotodom
Три приёма, которые делают любую двушку удобнее
Организуйте систему хранения у входа
Вместо стандартной обувницы или узкого пенала можно установить шкаф-купе до потолка с большим количеством отделов. Это позволит избавиться от хаоса в прихожей и обеспечить хранение всех вещей, используемых в текущем сезоне. Одежду, которая не нужна прямо сейчас, можно отправить на антресоль.
Задействуйте подоконники
Подумайте о том, чтобы встроить столешницу в подоконник. Чаще всего такие решения используют на кухнях, это позволяет получить новую рабочую поверхность или место для перекусов.
В спальне или гостиной широкий подоконник может быть письменным столом или макияжной зоной.
Продумайте освещение
Единственная люстра создаёт неравномерный свет и сильные тени. Поэтому стоит продумать многоуровневую систему освещения. Комбинируйте точечные светильники с бра, торшерами и LED-лентами: так вы сможете не просто осветить комнату, а управлять её атмосферой.
Например, для работы включите яркую подсветку стола, для романтического ужина — приглушённые бра, а для вечеринки с друзьями — всю люстру и ленту по потолку.
Четыре сценария планировки: выбираем подходящий
Теперь, когда мы разобрали базовые принципы, рассмотрим примеры планировок двухкомнатной квартиры.
Классическая двушка: две изолированные комнаты
Это удобный вариант для семьи с ребёнком. Кухня может выступать как кухня-гостиная, а спальня и детская будут отдельными изолированными комнатами.
В этом варианте важно продумать на кухне удобное посадочное место для сбора гостей. Если на полноценный диван не хватает места, можно поставить узкую кушетку, сейчас очень много стильных вариантов.
Такое решение подойдёт и для пар с разным графиком работы. Образуется чёткое разделение на приватную и общую зоны: в одной комнате можно спокойно отдыхать, пока в другой занимаются домашними делами или хобби.
Квартиру с такой планировкой легко приспособить для жизни семьи из 3–4 человек. Для общения остаётся просторная кухня. Фото: Macrovector / Shutterstock / Fotodom
Евродвушка: объединяем кухню и гостиную
Евродвушка отлично подойдёт для человека, который проживает один. Можно объединить кухню и гостиную и получить большое удобное пространство и изолированную спальню. Главное — обратить внимание, не находится ли между кухней и гостиной несущая стена, тогда объединение невозможно. Также нельзя объединить кухню с комнатой, если на кухне есть газ.
Кухню и гостиную можно разделить барной стойкой или островом, а если для них нет места — разной отделкой.
Важно подобрать мощную вытяжку, которая быстро удаляет запахи и пар.
Посуда, техника, кухонная утварь прячутся, чтобы не создавать визуальный шум.
Можно легко найти пространство для себя и гостей, если отвести на спальню чуть меньше места, чем обычно. Фото: hasib032 / Shutterstock / Fotodom
Семейная двушка: максимум хранения, минимум мебели
Для семейных двушек мы всегда в проектах продумываем максимальное количество мест хранения.
Частый лайфхак — сделать хранение над зоной кровати, которое обычно пустует и никак функционально не используется. Мы там делаем шкафы в цвет стен, которые перетекают в прикроватные тумбы. Так мы получаем удобное дополнительное место хранения, которое не загромождает пространство.
Мебель нужно подбирать особенно тщательно. Обычную кровать лучше заменить на трансформер со встроенными ящиками, а вместо полнотелых пуфов заказать модели с откидными крышками. Высокие шкафы в цвет стен вместят всё необходимое и визуально растворятся в пространстве. А 2–3 навесные полки заметно разгрузят поверхность рабочего стола.
Пример двушки для семьи с ребёнком. Помимо зоны хранения в гардеробной, есть ещё два крупных шкафа — по одному в каждой комнате. Фото: Simeonn / Shutterstock / Fotodom
Двушка для фрилансера: рабочее место в нише спальни или на лоджии
Первая комната отводится под гостиную для отдыха, а рабочий стол стоит в спальне. Его можно отделить при помощи реечной перегородки или стеллажа.
Хорошее расположение стола — в нише в спальне. Днём можно спокойно уединиться и поработать, чтобы никто не отвлекал. А вечером за счёт ниши стол будет изолирован, и свет не будет мешать спать другому человеку.

Если в спальне есть ниша, её можно использовать для размещения стола и стеллажа для документов, как показано в этом примере. Фото: Green angel / Shutterstock / Fotodom
Ещё одно хорошее место для кабинета — это балкон. Но тут важно, чтобы балкон был полностью утеплён, иначе зимой на нём работать не получится.
Столешница размещается перпендикулярно фасаду, над ней можно сделать полки. На другом краю просторного балкона логично поставить шкаф или стеллаж для документов и техники.
***
Выбирая планировку, ориентируйтесь не только на текущие потребности, но и на перспективу. Например, если через пару лет вы собираетесь стать родителями, стоит предусмотреть возможность переноса рабочей зоны из гостиной на балкон. А пока балкон пустует, там можно организовать зону для отдыха.
Как спланировать двушку в программе «Дизайн интерьера 3D»
Многие оставляют начальный вариант планировки двухкомнатной квартиры, потому что не верят в свои силы и не хотят платить дизайнеру.
При этом есть простые онлайн-программы, в которых можно нарисовать план квартиры даже с минимальными знаниями в черчении. Во многих сервисах добавлены готовые модели предметов, поэтому не придётся рисовать условные обозначения для дверей или мебели, рассчитывать все размеры.
Один из подходящих продуктов — Дизайн интерьера 3D. Это недорогой инструмент, который подходит для пользователей любого уровня. Разберём отрисовку плана на его примере.
Создаём новый проект. Вы можете обвести цифровую копию плана или начертить квартиру с нуля, ориентируясь на размерную сетку. Главное — указать толщину стен, чтобы было понятно, какие из них являются несущими.
Здесь и далее: скриншот автора
Добавляем внутренние перегородки, которые нужно возвести. Выберите из каталога окна и двери. Если нужно, скорректируйте высоту и ширину проёмов, настройте подоконники.
На следующем шаге определяемся с отделкой. Это удобнее делать в 3D-режиме: переключаемся на него с помощью кнопки в левой части экрана.
Чтобы поменять отделку, кликните по нужной комнате в списке объектов. Откройте вкладку «Свойства» и найдите окно для настройки материалов. Можно заменить отделку стен, потолка и пола, цвет плинтусов. В каталоге 1 200+ встроенных материалов. Если не нашли подходящий, загрузите в программу понравившуюся текстуру.
Наполняем пространство мебелью. Ищите подходящие модели в каталоге и расставляйте их на плане. Чтобы предметы подходили вашему интерьеру, настройте размеры и текстуры во вкладке «Свойства». Затем дополните обстановку декором: шторами, коврами, полками и другими аксессуарами.
Освещение. В меню есть пункт «Светильники и люстры» — добавляем торшеры, бра и потолочные лампы. Поэкспериментируйте с флажком «Включить свет», это поможет приблизительно понять, как искусственный свет распространяется по комнате.
Для тех, кто хочет углубиться в детали, есть режим «Коммуникации» для планирования электрики, отопления и водоснабжения. Из минимального — добавьте розетки и выключатели, чтобы продумать к ним доступ.
Готовый план квартиры можно использовать для ремонта. Дополнительно распечатайте 3D-ракурсы и пройдитесь по комнатам в режиме «Вид изнутри».


Советую распечатать получившуюся планировку, приехать на объект и пройтись ногами по ней. Это поможет понять, насколько удобно вы всё продумали, нет ли предметов мебели, которые мешаются у вас на пути. Желательно повторить так все действия, которые вы чаще всего делаете в квартире. Так вы увидите, удобна ли планировка во всех сценариях проживания.
Частые ошибки при создании планировок
Чтобы избежать просчётов, полезно знать о типичных промахах при проектировании. Это сбережёт ваши ресурсы.
Пустая середина комнаты. Многие расставляют всё у стен, оставляя свободное место в центре. Эффективнее создавать функциональные зоны — например, поместить диван поближе к середине помещения, выделив таким способом место для отдыха.
Неверный масштаб предметов. Часто выбирают слишком крупную или мелкую мебель. Чтобы этого не случилось, стоит заранее визуализировать проект.
Неудобные пути перемещения. Расстановка может мешать свободному движению. Проверьте, чтобы на основных маршрутах не было помех.
Слишком узкие промежутки. Между элементами обстановки нужно оставлять проходы 60–70 см. Такого расстояния достаточно, чтобы разошлись два человека.
Непродуманная работа створок. Дверцы шкафов и техники должны отворяться полностью. Убедитесь в этом до окончательной сборки.
Избыток открытых поверхностей. Множество полок без фасадов требует безупречной аккуратности. Практичнее использовать закрытые шкафы с продуманным наполнением.
Главное
Начинайте составлять план двухкомнатной квартиры с анализа исходных условий: определите несущие стены, расположение окон и инженерных коммуникаций.
Проанализируйте свой распорядок дня, затем распределяйте и зонируйте комнаты. Если работаете из дома, выделите в спальне место под кабинет, если часто принимаете гостей — подумайте о кухне-гостиной.
Попробуйте использовать программы для проектирования. Они помогут протестировать несколько вариантов расстановки.
Избегайте распространённых ошибок: мебели по периметру всех стен, узких проходов, открытого хранения большого количества вещей.














