


664 506 ₽/м²
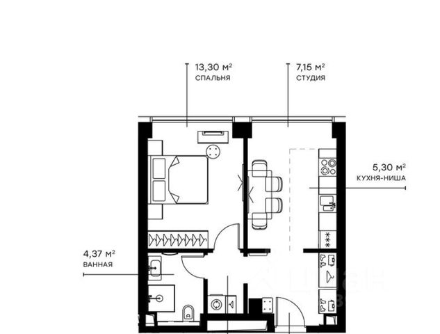
В премиальном жилом квартале PRIDE продается 1 - комнатная квартира - студия в 1 корпусе, на 9 этаже, в секции 10. Её общая площадь составляет 37.7 м². Пространство включает зону для отдыха 15,4 м², уютную кухню 10,2 м², и ванную комнату 5,2 м². Ключи в 2026 году. Удобная локация: Жилой квартал расположен в 15 минутах от Цветного бульвара в историческом районе Марьина Роща. До любой точки города быстро и удобно добраться, как на общественном транспорте, так и на авто — комплекс находится всего в 3 минутах от ТТК и в пешей доступности от метро. Яркая архитектура с переменной высотностью от 7 до 22 этажей от именитого бюро APEX формирует запоминающийся облик проекта. Развитая инфраструктура: Территория квартала делится на несколько отдельных частей: открытый просторный бульвар 3500 м² для прогулок и два внутренних камерных двора. Внутри предусмотрены площадки для спорта, места для игр и тихие пространства для отдыха и неторопливого общения. Коммерческие и торговые помещения спроектированы на уровне первых этажей: супермаркеты, магазины, рестораны и кофейни, барбершоп, спа-салон и другие сервисные точки. Образовательный центр со школой на 257 учеников и детским садом на 112 мест на собственной территории квартал - идеальное решение для семей с детьми. Таким образом, внутренняя инфраструктура PRIDE обеспечит все базовые потребности будущих жителей. Благоустроенная территория: Ландшафтный дизайн с многоуровневым и замысловатым озеленением будет радовать жителей на протяжении всех сезонов — богатая флора дворов включает в себя несколько десятков видов растений. Лобби как в лучших отелях мира: На первых этажах резидентов и гостей встретят лобби с авторским дизайном от Sundukovy Sisters, бюро знаменито своими работами для отелей и ресторанов премиум-класса во всем мире. Надежный застройщик: Девелопер PIONEER — компания с 24-летней историей. В портфеле — 40 проектов жилой, коммерческой, социальной и многофункциональной недвижимости в Москве и Санкт-Петербурге. С 2001 года было реализовано 2,9 млн м². В настоящее время 1,6 млн м² находятся в стадии проектирования и строительства. Среди новых знаковых проектов девелопера — премиальные жилые кварталы и деловые объекты класса А. Продается 1-комнатная квартира на улице Полковая в Москве.



































































































