480 392 ₽/м²
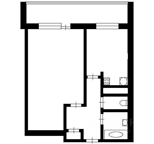
Код объекта: 2098653. Продаётся уютная однокомнатная квартира в историческом районе Москвы - Мещанском. Мещанский район — престижный, исторический центр Москвы с высочайшим качеством жизни, сочетающий развитую инфраструктуру, обилие зелени (до 30% территории - Аптекарский огород, Екатерининский парк, Фестивальный парк и пр.) и богатую культурную среду. Основные преимущества включают пешую доступность до знаковых мест (Цветной бульвар, Кремль, ВДНХ), элитную недвижимость, лучшие школы и театры, а также статус "тихого центра". Уютная квартира общей площадью 40.8 квадратных метров расположена на втором этаже девятиэтажного кирпичного дома, расположенного по адресу: Москва, ЦАО, Мещанский р-н, Трифоновская улица, 56. Жилая площадь составляет комфортные 22.2 квадратных метра, кухня - 7.2 квадратных метра. Евроремонт (15 лет). Теплые полы на кухне, балконе, прихожей. Кондиционер, кухня со всей необходимой техникой. Три встроенных шкафа. Вся встроенная мебель/техника остается, холодильник, диван, кровать, тренажер - все остается!). Санузел совмещённый. Окна во двор (окно кухни над козырьком подъезда - установлены электрические жалюзи с улицы). В квартире охранная система. Парковка во дворе со шлагбаумом с камерами (управление и просмотр через приложение Дворецкий). Отличный, тихий, безопасный район. Метро Рижская через перекресток (3 минуты пешком). 10-15 минут до Цветного бульвара, Екатериненского парка, Аптекарского огорода, Сокольников, ВДНХ. Рядом теннисные корты, крытые футбольные площадки, кёрлинг-клуб, конный клуб. Скоро откроют новый Олимпийский с огромным количеством спортивных направлений. Основание владения: ДКП (7 лет), ипотека Сбербанка (ипотека погашена), без обременений. Причина продажи: покупка другой квартиры после погашения ипотеки - в процессе подбора. После перехода права собственности необходимо 20 дней для переезда - будет прописано в договоре, вся ответственность на продавце на этот срок. История квартиры максимально чистая. Просмотр по договоренности. 1-комнатная квартира на улице Трифоновская в Москве.










































































