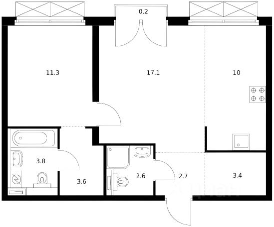
Продается 1-комн. квартира на 12-м этаже 17-ти этажного панельного дома серии П-44 общей площадью 38 кв.м, комнатой 19 кв.м с выходом на не застекленную лоджию, кухней-8,5 кв.м. Квартира находится по адресу: Филёвский бульвар, д.40, в 5 мин. пешком от м. Мнёвники. Локация дома очень удачная, транспортная доступность прекрасная, особенно после введения в эксплуатацию Гагаринского моста. Подъезд чистый, консьерж, 2 новых лифта - пассажирский и грузовой, на этаже мусоропровод, тамбур на 4 квартиры, очень тихо и чисто, соседи интеллигентные, их совсем не слышно. Состояние квартиры хорошее, без перепланировок, на полу-ламинат, стеклопакеты в комнате, кухонный гарнитур в приличном состоянии, частично (на кухне и в санузле) нужен ремонт, прихожая 6 кв.м со встроенным шкафом, окна квартиры выходят на улицу Мясищева, на солнечную сторону, поэтому в квартире всегда светло и тепло, с перспективным видом на Москва-сити. Парковка вдоль дома, всегда можно найти место. Рядом с домом детская площадка, различные магазины, детские сады, школы, гимназии, поликлиники взрослые и детская, больница, вся необходимая инфраструктура, рядом Москва-река с живописной набережной, благоустроенной для прогулок и велопрогонов, очень красивый Храм всех святых на Филёвской пойме, недалеко от Филёвской поймы находятся несколько парков - Москворецкий дендропарк, Филёвский парк, детский парк Фили, парк Крылатские холмы, спорткомплекс Крылатское и т.д. Недавно построенный Гагаринского мост связал улицу Мясищева с Проектируемым проездом 1166, обеспечив удобное сообщение между районами Филёвский Парк и Хорошево-Мневники. Мост расположен в удобной транспортной зоне. С одной стороны — улица Мясищева, ведущая к жилым кварталам и образовательным центрам, с другой — территория Национального Космического Центра, где создаются новейшие спутники и ракеты. По вечерам Гагаринский мост подсвечивается, создавая эффект "парящего" сооружения. Излюбленное место для фотографий — смотровая площадка у НКЦ, откуда открывается панорама реки и современного архитектурного ансамбля. Полная стоимость в договоре, 1 собственник более 10 лет, альтернатива. без торга.