257 392 ₽/м²
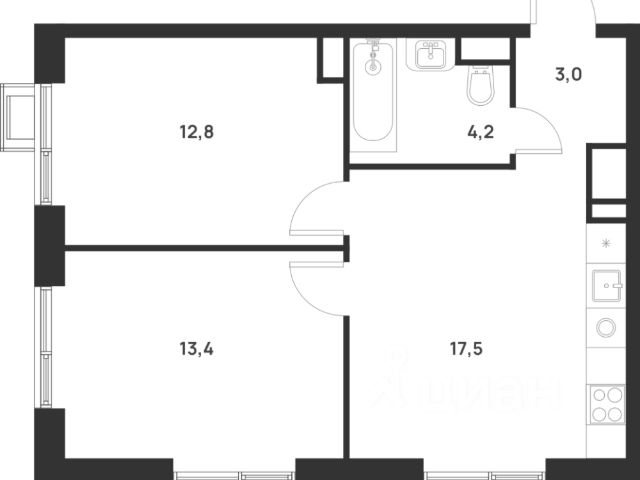
Строим кварталы для жизни с заботой о будущем. Предлагаются 2-комнатные апартаменты бизнес-класса площадью 55,07 кв.м в корпусе 2.2 на 15-м этаже, в жилом комплексе "Тропарево Парк". Проект строится полностью с отделкой, которая включает ламинат, обои под покраску, натяжной потолок. Установлены двойные стеклопакеты увеличенного формата до 180 см, которые не только сохраняют тепло в доме, но и пропускают много солнца, делая комнаты светлее. Стены в ванной и санузлах отделаны керамогранитом под мрамор, установлена вся нужная сантехника. Для стиральной машины уже предусмотрено место. Прописка не предусмотрена в рамках юридического статуса - апартаменты. Приобрести апартаменты возможно по специальным акциям от застройщика, с текущими условиями акций можно ознакомиться в блоке "Акций". Цена динамическая и может отличаться, уточняйте актуальность у застройщика. "Тропарево Парк" — комплекс апартаментов бизнес-класса рядом с Ленинским проспектом, в Новой Москве. Находится всего в 10 минутах пешком от станции метро "Румянцево". Включает 7 жилых корпусов высотой от 16 до 23 этажей, приватные дворы-сады, обширную зеленую территорию с общественными пространствами. Из части апартаментов открываются виды на Тропаревский лесопарк, расположенный рядом.

















































































































