


621 000 ₽/м²
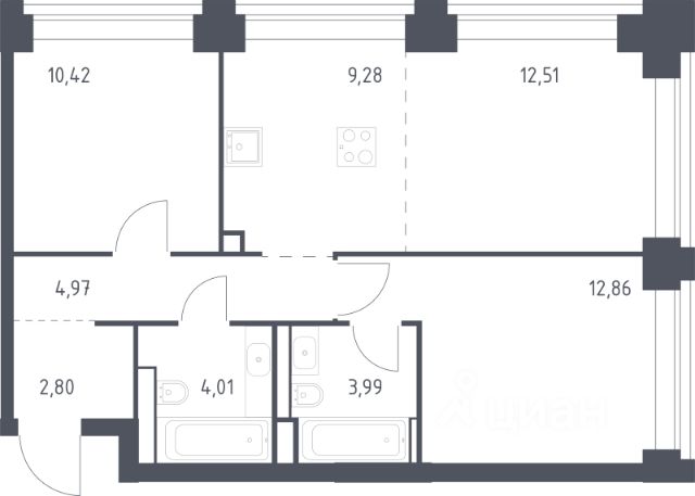
Продаётся 2-комнатная квартира от застройщика: общая площадь 72.50 м², жилая 31.50 м², кухня 24.40 м², 16-й этаж, жилой квартал "Событие-6", корпус 2 (секция 1) Срок сдачи: 1 квартал 2029 года. Позвоните сейчас и забронируйте квартиру! Продуманный до деталей. Созданный для жизни, полной счастливых событий. Парк-квартал СОБЫТИЕ - это жизнь класса премиум в престижном районе на Мосфильмовской улице. Архитектура мирового уровня. Выигрышное расположение на границе природного комплекса "Долина реки Раменки". Все для комфортной жизни и досуга: от детсадов и школ до ресторанов и медцентров. И новая точка притяжения - уже готовый парк "Событие" с пространствами активности для всех возрастов и интересов. Особенности квартала: • "Парящие" мосты и парк под облаками - уникальный дом с самыми завораживающими видами из окон "в пол" • Собственный парк - сразу за порогом! • Архитектурная концепция от известных международных бюро LDA Design и UHA London • Инфраструктура "тапочной доступности": в кафе, школу, магазин - за пару минут! • Внутренний двор - настоящее продолжение вашего дома: закрытая охраняемая территория без машин, развивающие детские площадки, воркауты-зоны для тех, кто хочет быть в форме, площади для праздников и посиделок с соседями.





















































































