


356 801 ₽/м²
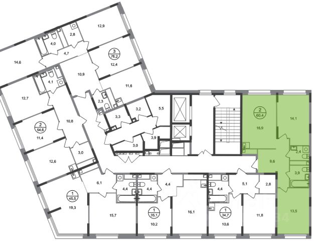
Продается двухкомнатная квартира без отделки в городе-парке "Переделкино Ближнее". Общая площадь квартиры - 51 кв. м, этаж 4 из 17. Срок сдачи - 3 квартал 2026 года. Тип дома - монолитный. Только до 11.05.26 г. - АКЦИЯ "ПОЙМАЙ МАЙ" : -скидки на покупку квартиры -выгодные условия на приобретение квартиры в ипотеку -бронирование 5 тыс.₽ входит в стоимость квартиры -бесплатная регистрация договора -гарантированные подарки при покупке *срок проведения акции с 25.04.26 г. по 11.05.26 г. Информацию об организаторе акции, правилах ее проведения, количестве призов, сроках, месте и порядке их получения уточняйте в офисе продаж. Город-парк "Переделкино Ближнее" расположен в 8 км от МКАД по Боровскому шоссе. ТРАНСПОРТНАЯ ДОСТУПНОСТЬ: - 10 минут пешком до МЦД-4 "Мичуринец" - 15 минут пешком до станции метро "Рассказовка" Солнцевской линии - 10 минут на машине до станции метро "Филатов Луг" Сокольнической линии - 30 минут до центра Москвы - Прямой выезд на дорогу Солнцево-Бутово-Варшавское шоссе, минуя жилую застройку всего ЖК БЛАГОУСТРОЙСТВО: 18 квартал строительства уникален своим расположением - в шаговой доступности парк на Лукинской улицы, река Алёшинка. На территории 18 квартала строительства будут построены 2 монолитных жилых корпуса повышенного комфорта разной этажности 7, 17 этажей. А также многоуровневый паркинг на 300 м/мест. Вход в жилую часть корпусов каждой секции осуществляется с двух сторон - с наружного контура жилого дома и со стороны дворового пространства, предусмотрен безбарьерный доступ. ВНУТРЕННЯЯ ИНФРАСТРУКТУРА: В рамках данного квартала, для жителей предусмотрено создание пространства, свободного от машин - благоустроенные огороженные дворы с современными детскими и спортивными площадками, разделенными на зоны по возрастам. На территории проекта есть все необходимые объекты социальной и бытовой инфраструктуры: детские сады, школы, магазины, паркинги, аптеки, поликлиники, пожарная часть и др. АВТОРСКИЙ ДИЗАЙН: Современный монолитный дом переменной этажности 7 и 17 этажей. На фасаде предусмотрены корзины для установки кондиционеров. Входные группы домов выполнены по авторскому дизайну. Колясочные располагаются при входе, велопарковка на -1 этаже.




































































































































