396 632 ₽/м²
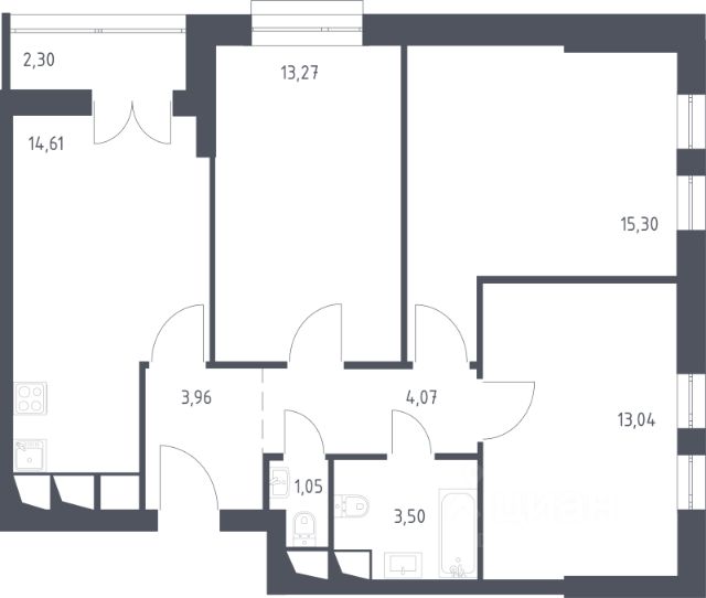
Строим кварталы для жизни с заботой о будущем. Предлагается 2-комнатная квартира комфорт-класса площадью 55,68 кв.м в корпусе 2 на 24-м этаже, в жилом комплексе "Квартал Строгино". В варианте без отделки мы установили окна и входную дверь, завели в квартиру коммуникации. Получайте ключи и начните создавать интерьер мечты в новой квартире. В варианте с предчистовой отделкой мы развели коммуникации по помещениям, выровняли и зашпаклевали стены, подготовили пол к чистовому покрытию. Ваша будущая квартира готова к финишному ремонту. Осталось выбрать, какие оттенки будут в вашем интерьере и воплотить дизайнерские идеи. В варианте с готовой отделкой мы поклеили обои под покраску, постелили полы в комнатах и санузлах, выполнили отделку стен. Установили сантехнику и межкомнатные двери, провели электрику. Это лучшее соотношение цены, качества и затраченного времени. Осталось только выбрать место для обеденного стола и удобного дивана. Приобрести квартиру возможно по специальным акциям от застройщика, с текущими условиями акций можно ознакомиться в блоке "Акций". Цена динамическая и может отличаться, уточняйте актуальность у застройщика. В жилом комплексе "Квартал Строгино" вас ждет широкий выбор досуга. Рядом МКАД и выезд на Новорижское шоссе и станции метро "Строгино" и "Мякинино". В пешей доступности — Живописная бухта, можно доехать до "Липовой Рощи" и "Серебряного бора". На территории комплекса будут 2 детских сада, школа и поликлиника. Двор-парк с площадками, велодорожками и паркингами. В лобби есть помещения для колясок. Квартиры с готовой отделкой и видом на бухту.













































































