Номер в базе: 10427981.
О ДОМЕ:
Панельный дом 1975 года постройки, серия II-49, приличные соседи.
Подъезд чистый и ухоженный, недавно сделан ремонт, мусоропроводом, что делает проживание комфортным и безопасным. Благоприятное состояние дома и его инфраструктуры позволит вам наслаждаться всеми преимуществами городской жизни.
О КВАРТИРЕ:
- Уютная квартира, окна на юго-восток во двор (деревья, зелень, тишина), обеспечены пластиковыми стеклопакетами и защитными решетками.
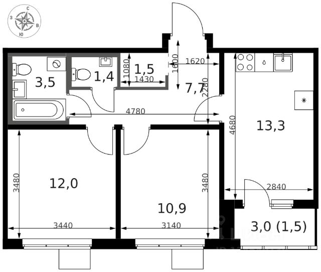
- Планировка удобная, комнаты изолированные: 18,8; 9,1; кухня 6 м².
- Санузел совместный, что добавляет удобства в повседневной жизни.
- В наличии мебель, квартира готова к проживанию, дополнительных вложений не требует.
- Подъезд чистый и ухоженный, недавно сделан ремонт.
О ЛОКАЦИИ:
- Дом находится в 10 минутах пешком от станции метро "Генерала Тюленева", или 2 остановки на автобусе. До станций "Теплый Стан" и "Тропарево" можно быстро добраться на транспорте или через парк. Остановка общественного транспорта находится напротив дома.
- Район отлично подходит для проживания семьи с детьми, вся необходимая инфраструктура в пешей доступности. В минуте ходьбы расположен парк "Тропарево" с благоустроенными зонами для отдыха, пляжной территорией с разрешенным купанием, детскими и спортивными площадками, также лодочной станцией, беговыми и велодорожками, можно с удовольствием гулять в любое время года.
- В трех минутах пешком находится спортивный комплекс "Самбо-70" с бассейном, секциями гимнастики и йоги.
- В шаговой доступности расположены школы, детские сады, поликлиника, а также Академия акварели и изящных искусств.
- Кафе, салоны красоты, сетевые магазины: Пятерочка, Ермолино, ВкусВилл, два торговых центра.
- Это предложение сочетает уединенность жилой зоны с развитой инфраструктурой и отличной транспортной доступностью.
О ДОКУМЕНТАХ:
1 взрослый собственник, в собственности более 5 лет, полная стоимость в договоре. Без обременений.
ДЛЯ ПОКУПАТЕЛЕЙ с агентством "ЭТАЖИ":
* финансовая гарантия до 25 000 000 рублей на 3 года (а также до 1 000 000 рублей по уже выплаченным % по ипотеке);
* содействие в получении положительного ипотечного решения в банках с пониженной % ставкой;
* юридическое сопровождение и гарантия безопасной сделки.
ДОБАВЬТЕ объявление в избранное, чтобы сохранить ссылку (нажмите сердечко)
ЗВОНИТЕ, готов организовать оперативный показ!
Код пользователя: 194342